Woning Mauritsweg 198 Dordrecht

Mauritsweg 198, 3314LR Dordrecht

Ontvang updates voor Pr. Bernhardstraat en omgeving

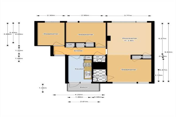
Het adres van deze woning uit 1957 is Mauritsweg 198 te Dordrecht. Het pand heeft een oppervlakte van 77m² en heeft 4 kamers kamers waarvan 3 slaapkamers. De geschatte waarde van deze woning is € 147.500.

Bekijk alle woningen in Pr. Bernhardstraat en omgeving

Gegevens van Galerijflat (appartement)

Bouwjaar
1957
Geschatte waarde
€ 147.500
Oppervlakte
77 m2
Inhoud
200 m3
Aantal kamers
4 kamers
Slaapkamers
3
Soort bouw
Bestaande bouw
Eigendomssituatie
Volle eigendom
Ligging
Vrij uitzicht en in woonwijk

Voorzieningen in de buurt

Boodschappen0,2 km
Grote supermarkt0,3 km
Cafetaria0,2 km
Restaurant0,4 km
Huisarts1,0 km
Ziekenhuis1,9 km
Kinderdagverblijf0,3 km
BSO0,3 km
Alle voorzieningen in Pr. Bernhardstraat en omgeving

Binnenkijken bij Mauritsweg 198 te Dordrecht

Meer meldingen in deze omgeving

112 melding
Zaterdag 29-11-2025 om 11:16
Juliana van Stolbergstraat, 3314PH Dordrecht

112 melding
Vrijdag 28-11-2025 om 23:38
Prins Bernhardstraat, 3314PT Dordrecht

112 melding
Vrijdag 28-11-2025 om 13:14
Amalia van Solmsstraat, 3314LD Dordrecht

112 melding
Vrijdag 28-11-2025 om 06:39
Nassauweg, 3314NE Dordrecht

Nieuw bedrijf
November 2025
Ernst Casimirstraat 3, 3314LH Dordrecht

Nieuw bedrijf
November 2025
Ernst Casimirstraat 21, 3314LH Dordrecht

112 melding
Woensdag 26-11-2025 om 14:20
Louise de Colignystraat, 3314PK Dordrecht

Binnenkijken bij
Woensdag 26-11-2025
Prins Bernhardstraat 33, 3314PR Dordrecht

Direct een e-mail ontvangen bij nieuwe meldingen in deze regio?

Meld je dan GRATIS aan voor de Oozo Alert service voor Pr. Bernhardstraat en omgeving

Instellen

Meer nieuws in Pr. Bernhardstraat en omgeving

Weten hoe eenvoudig het is om af te vallen? Zonder pillen en smeersels en zonder je in het zweet te werken!
Kijk op eenvoudig-afvallen.nl

© 2012 - 2025 OOZO.nl - info@oozo.nl - Gegevens verwijderen? | Disclaimer | Privacy statement