Woning Singel 142 Dordrecht

Singel 142, 3311PE Dordrecht

Ontvang updates voor Park Merwestein en omgeving

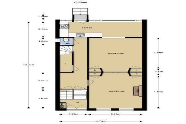
Het adres van deze woning is Singel 142 te Dordrecht. Het pand heeft een oppervlakte van 203m² en een perceeloppervlakte van 184m² en heeft 7 kamers kamers waarvan 5 slaapkamers. De geschatte waarde van deze woning is € 550.000.

Bekijk alle woningen in Park Merwestein en omgeving

Gegevens van Herenhuis, eindwoning

Bouwjaar
Voor 1906
Geschatte waarde
€ 550.000
Oppervlakte
203 m2
Inhoud
984 m3
Aantal kamers
7 kamers
Slaapkamers
5
Badkamers
1 badkamer en 3 aparte toiletten
Soort bouw
Bestaande bouw
Eigendomssituatie
Volle eigendom
Ligging
In centrum
Tuin
Achtertuin
Achtertuin
78 m² (13m diep en 6m breed)

Voorzieningen in de buurt

Boodschappen0,3 km
Grote supermarkt0,4 km
Cafetaria0,3 km
Restaurant0,3 km
Huisarts0,3 km
Ziekenhuis2,9 km
Kinderdagverblijf0,3 km
BSO0,3 km
Alle voorzieningen in Park Merwestein en omgeving

Binnenkijken bij Singel 142 te Dordrecht

Meer meldingen in deze omgeving

112 melding
Woensdag 6-5-2026 om 09:08
Oranjepark, Dordrecht

112 melding
Woensdag 6-5-2026 om 07:13
Oranjelaan, 3311DK Dordrecht (South Holland)

112 melding
Woensdag 6-5-2026 om 07:13
Oranjelaan, 3311DK Dordrecht (South Holland)

112 melding
Dinsdag 5-5-2026 om 17:40
Oranjelaan, 3311DK Dordrecht (South Holland)

Binnenkijken bij
Dinsdag 5-5-2026
Oranjepark 73, 3311LP Dordrecht

112 melding
Maandag 4-5-2026 om 22:58
Gevaertsweg, 3311DA Dordrecht

112 melding
Donderdag 30-4-2026 om 10:23
Oranjepark, 3311LP Dordrecht

112 melding
Donderdag 30-4-2026 om 09:25
Hallincqlaan, Dordrecht

Direct een e-mail ontvangen bij nieuwe meldingen in deze regio?

Meld je dan GRATIS aan voor de Oozo Alert service voor Park Merwestein en omgeving

Instellen

Meer nieuws in Park Merwestein en omgeving

Weten hoe eenvoudig het is om af te vallen? Zonder pillen en smeersels en zonder je in het zweet te werken!
Kijk op eenvoudig-afvallen.nl

© 2012 - 2026 OOZO.nl - info@oozo.nl - Gegevens verwijderen? | Disclaimer | Privacy statement