Woning Groenedijk 62 Dordrecht

Groenedijk 62, 3311DC Dordrecht

Ontvang updates voor Park Merwestein en omgeving

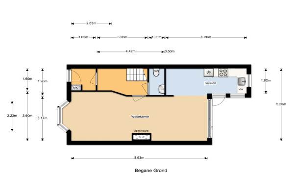
Het adres van deze woning is Groenedijk 62 te Dordrecht. Het pand heeft een oppervlakte van 140m² en een perceeloppervlakte van 151m² en heeft 6 kamers kamers waarvan 4 slaapkamers. De geschatte waarde van deze woning is € 300.000.

Bekijk alle woningen in Park Merwestein en omgeving

Gegevens van Eengezinswoning, tussenwoning

Geschatte waarde
€ 300.000
Oppervlakte
140 m2
Inhoud
410 m3
Aantal kamers
6 kamers
Slaapkamers
4
Badkamers
1 badkamer en 1 apart toilet
Soort bouw
Bestaande bouw
Eigendomssituatie
Volle eigendom
Ligging
In woonwijk en in centrum
Tuin
Voortuin en achtertuin
Achtertuin
59 m² (11,2m diep en 5,25m breed)

Voorzieningen in de buurt

Boodschappen0,3 km
Grote supermarkt0,4 km
Cafetaria0,3 km
Restaurant0,3 km
Huisarts0,3 km
Ziekenhuis2,9 km
Kinderdagverblijf0,3 km
BSO0,3 km
Alle voorzieningen in Park Merwestein en omgeving

Binnenkijken bij Groenedijk 62 te Dordrecht

Meer meldingen in deze omgeving

112 melding
Woensdag 6-5-2026 om 09:08
Oranjepark, Dordrecht

112 melding
Woensdag 6-5-2026 om 07:13
Oranjelaan, 3311DK Dordrecht (South Holland)

112 melding
Woensdag 6-5-2026 om 07:13
Oranjelaan, 3311DK Dordrecht (South Holland)

112 melding
Dinsdag 5-5-2026 om 17:40
Oranjelaan, 3311DK Dordrecht (South Holland)

Binnenkijken bij
Dinsdag 5-5-2026
Oranjepark 73, 3311LP Dordrecht

112 melding
Maandag 4-5-2026 om 22:58
Gevaertsweg, 3311DA Dordrecht

112 melding
Donderdag 30-4-2026 om 10:23
Oranjepark, 3311LP Dordrecht

112 melding
Donderdag 30-4-2026 om 09:25
Hallincqlaan, Dordrecht

Direct een e-mail ontvangen bij nieuwe meldingen in deze regio?

Meld je dan GRATIS aan voor de Oozo Alert service voor Park Merwestein en omgeving

Instellen

Meer nieuws in Park Merwestein en omgeving

Weten hoe eenvoudig het is om af te vallen? Zonder pillen en smeersels en zonder je in het zweet te werken!
Kijk op eenvoudig-afvallen.nl

© 2012 - 2026 OOZO.nl - info@oozo.nl - Gegevens verwijderen? | Disclaimer | Privacy statement