Woning Breitnerstraat 5 Dordrecht

Breitnerstraat 5, 3314XC Dordrecht

Ontvang updates voor Breitnerstraat en omgeving

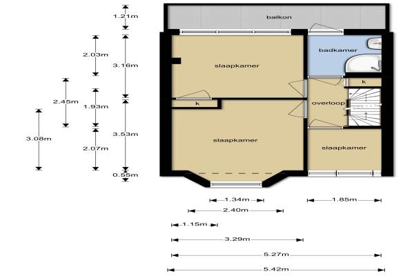
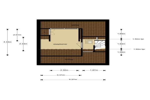
Het adres van deze woning uit 1934 is Breitnerstraat 5 te Dordrecht. Het pand heeft een oppervlakte van 101m² en een perceeloppervlakte van 138m² en heeft 5 kamers kamers waarvan 4 slaapkamers. De geschatte waarde van deze woning is € 185.000.

Bekijk alle woningen in Breitnerstraat en omgeving

Gegevens van Eengezinswoning, tussenwoning

Bouwjaar
1934
Geschatte waarde
€ 185.000
Oppervlakte
101 m2
Inhoud
371 m3
Aantal kamers
5 kamers
Slaapkamers
4
Badkamers
2 aparte toiletten
Soort bouw
Bestaande bouw
Eigendomssituatie
Volle eigendom
Tuin
Achtertuin en voortuin
Achtertuin
M² (0,1m diep en 0,05m breed)

Voorzieningen in de buurt

Boodschappen0,3 km
Grote supermarkt0,4 km
Cafetaria0,2 km
Restaurant0,3 km
Huisarts0,4 km
Ziekenhuis2,5 km
Kinderdagverblijf0,2 km
BSO0,2 km
Alle voorzieningen in Breitnerstraat en omgeving

Binnenkijken bij Breitnerstraat 5 te Dordrecht

Meer meldingen in deze omgeving

112 melding
Dinsdag 25-11-2025 om 15:30
Jozef Israëlsstraat, 3314 Dordrecht

112 melding
Dinsdag 25-11-2025 om 15:30
Jozef Israëlsstraat, 3314 Dordrecht

112 melding
Dinsdag 25-11-2025 om 09:23
Brouwersdijk, 3314GL Dordrecht

112 melding
Vrijdag 21-11-2025 om 15:47
Breitnerstraat, Dordrecht

112 melding
Vrijdag 21-11-2025 om 15:47
Breitnerstraat, Dordrecht

112 melding
Donderdag 20-11-2025 om 23:51
Jozef Israëlsstraat, 3314VC Dordrecht

112 melding
Donderdag 20-11-2025 om 14:16
Jozef Israëlsstraat, 3314 Dordrecht

112 melding
Woensdag 19-11-2025 om 12:21
Schotelstraat, 3314XS Dordrecht

Direct een e-mail ontvangen bij nieuwe meldingen in deze regio?

Meld je dan GRATIS aan voor de Oozo Alert service voor Breitnerstraat en omgeving

Instellen

Meer nieuws in Breitnerstraat en omgeving

Weten hoe eenvoudig het is om af te vallen? Zonder pillen en smeersels en zonder je in het zweet te werken!
Kijk op eenvoudig-afvallen.nl

© 2012 - 2025 OOZO.nl - info@oozo.nl - Gegevens verwijderen? | Disclaimer | Privacy statement