Woning Verhulststraat 28 Dordrecht

Verhulststraat 28, 3314WV Dordrecht

Ontvang updates voor Viottakade en omgeving

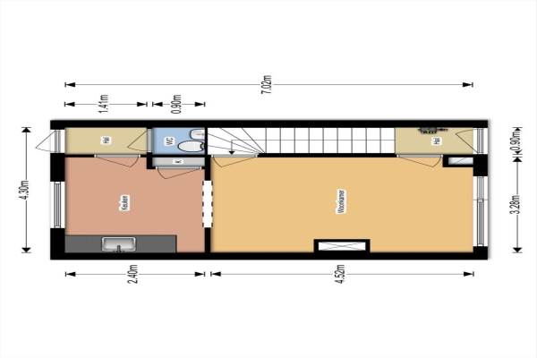
Het adres van deze woning uit 1935 is Verhulststraat 28 te Dordrecht. Het pand heeft een oppervlakte van 60m² en heeft 4 kamers kamers waarvan 3 slaapkamers. De geschatte waarde van deze woning is € 110.000.

Bekijk alle woningen in Viottakade en omgeving

Gegevens van Eengezinswoning, tussenwoning

Bouwjaar
1935
Geschatte waarde
€ 110.000
Oppervlakte
60 m2
Inhoud
264 m3
Aantal kamers
4 kamers
Slaapkamers
3
Soort bouw
Bestaande bouw
Eigendomssituatie
Volle eigendom
Ligging
Aan rustige weg en beschutte ligging
Tuin
Achtertuin en voortuin
Achtertuin
45 m² (10m diep en 4,5m breed)

Voorzieningen in de buurt

Boodschappen0,5 km
Grote supermarkt0,5 km
Cafetaria0,2 km
Restaurant0,7 km
Huisarts0,7 km
Ziekenhuis2,9 km
Kinderdagverblijf0,2 km
BSO0,2 km
Alle voorzieningen in Viottakade en omgeving

Binnenkijken bij Verhulststraat 28 te Dordrecht

Meer meldingen in deze omgeving

112 melding
Woensdag 3-12-2025 om 15:08
Brouwersdijk, 3314GJ Dordrecht

112 melding
Woensdag 3-12-2025 om 11:48
Obrechtstraat, 3314EK Dordrecht

112 melding
Woensdag 3-12-2025 om 11:48
Obrechtstraat, 3314EK Dordrecht

112 melding
Woensdag 3-12-2025 om 11:48
Obrechtstraat, 3314EK Dordrecht

112 melding
Woensdag 3-12-2025 om 10:50
Diepenbrockweg, 3314CC Dordrecht

Nieuw bedrijf
December 2025
Frans Lebretlaan 19, 3314EB Dordrecht

112 melding
Dinsdag 2-12-2025 om 23:04
Brandts Buysstraat, 3314CA Dordrecht

112 melding
Dinsdag 2-12-2025 om 15:43
Van Blanckenburgstraat, Dordrecht

Direct een e-mail ontvangen bij nieuwe meldingen in deze regio?

Meld je dan GRATIS aan voor de Oozo Alert service voor Viottakade en omgeving

Instellen

Meer nieuws in Viottakade en omgeving

Weten hoe eenvoudig het is om af te vallen? Zonder pillen en smeersels en zonder je in het zweet te werken!
Kijk op eenvoudig-afvallen.nl

© 2012 - 2025 OOZO.nl - info@oozo.nl - Gegevens verwijderen? | Disclaimer | Privacy statement