Woning Sweelinckstraat 37 Dordrecht

Sweelinckstraat 37, 3314WH Dordrecht

Ontvang updates voor Viottakade en omgeving

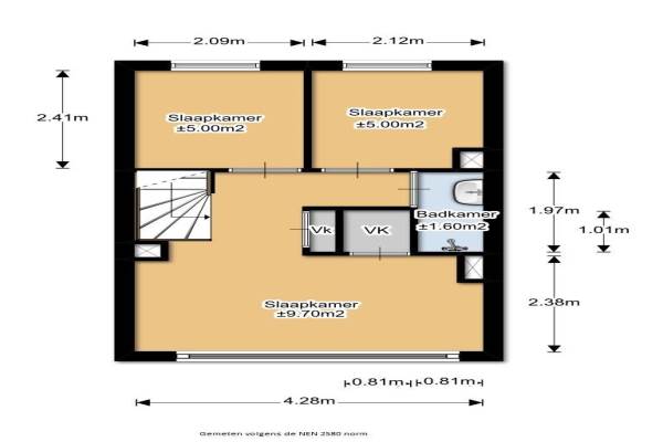
Het adres van deze woning uit 1938 is Sweelinckstraat 37 te Dordrecht. Het pand heeft een oppervlakte van 62m² en een perceeloppervlakte van 90m² en heeft 4 kamers kamers waarvan 3 slaapkamers. De geschatte waarde van deze woning is € 120.000.

Bekijk alle woningen in Viottakade en omgeving

Gegevens van Eengezinswoning, tussenwoning

Bouwjaar
1938
Geschatte waarde
€ 120.000
Oppervlakte
62 m2
Inhoud
182 m3
Aantal kamers
4 kamers
Slaapkamers
3
Badkamers
1 apart toilet
Soort bouw
Bestaande bouw
Ligging
In woonwijk en open ligging
Tuin
Achtertuin
Achtertuin
40 m² (9,52m diep en 4,2m breed)

Voorzieningen in de buurt

Boodschappen0,5 km
Grote supermarkt0,5 km
Cafetaria0,2 km
Restaurant0,7 km
Huisarts0,7 km
Ziekenhuis2,9 km
Kinderdagverblijf0,2 km
BSO0,2 km
Alle voorzieningen in Viottakade en omgeving

Binnenkijken bij Sweelinckstraat 37 te Dordrecht

Meer meldingen in deze omgeving

112 melding
Zondag 25-1-2026 om 20:53
Brouwersdijk, 3314GJ Dordrecht

112 melding
Zondag 25-1-2026 om 20:53
Brouwersdijk, 3314GJ Dordrecht

112 melding
Zaterdag 24-1-2026 om 17:16
Viottakade, 3314ET Dordrecht

112 melding
Donderdag 22-1-2026 om 18:05
Sweelinckplein, 3314CL Dordrecht

112 melding
Donderdag 22-1-2026 om 13:20
Frans Lebretlaan, 3314EB Dordrecht

Binnenkijken bij
Donderdag 22-1-2026
Verhulststraat 82, 3314WX Dordrecht

112 melding
Woensdag 21-1-2026 om 13:22
Frans Lebretlaan, 3314EB Dordrecht

112 melding
Woensdag 21-1-2026 om 13:22
Frans Lebretlaan, 3314EB Dordrecht

Direct een e-mail ontvangen bij nieuwe meldingen in deze regio?

Meld je dan GRATIS aan voor de Oozo Alert service voor Viottakade en omgeving

Instellen

Meer nieuws in Viottakade en omgeving

Weten hoe eenvoudig het is om af te vallen? Zonder pillen en smeersels en zonder je in het zweet te werken!
Kijk op eenvoudig-afvallen.nl

© 2012 - 2026 OOZO.nl - info@oozo.nl - Gegevens verwijderen? | Disclaimer | Privacy statement