Woning Merwedestraat 127 Dordrecht

Merwedestraat 127, 3313GR Dordrecht

Ontvang updates voor Amerstraat en omgeving

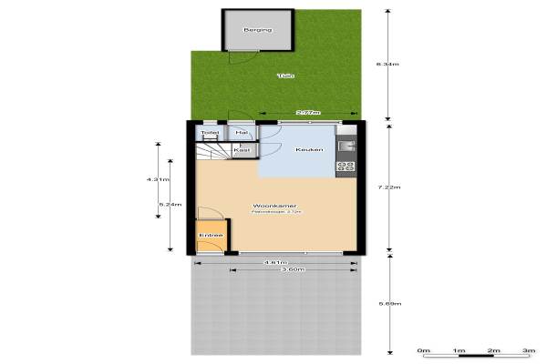
Het adres van deze woning uit 1934 is Merwedestraat 127 te Dordrecht. Het pand heeft een oppervlakte van 70m² en een perceeloppervlakte van 96m² en heeft 5 kamers kamers waarvan 3 slaapkamers. De geschatte waarde van deze woning is € 139.500.

Bekijk alle woningen in Amerstraat en omgeving

Gegevens van Eengezinswoning, tussenwoning

Bouwjaar
1934
Geschatte waarde
€ 139.500
Oppervlakte
70 m2
Inhoud
235 m3
Aantal kamers
5 kamers
Slaapkamers
3
Badkamers
1 badkamer en 1 apart toilet
Soort bouw
Bestaande bouw
Eigendomssituatie
Volle eigendom
Tuin
Achtertuin en voortuin
Achtertuin
29 m² (6m diep en 4,8m breed)

Voorzieningen in de buurt

Boodschappen1,6 km
Grote supermarkt0,2 km
Cafetaria0,2 km
Restaurant0,6 km
Huisarts1,5 km
Ziekenhuis4,3 km
Kinderdagverblijf0,3 km
BSO1,3 km
Alle voorzieningen in Amerstraat en omgeving

Binnenkijken bij Merwedestraat 127 te Dordrecht

Meer meldingen in deze omgeving

112 melding
Zaterdag 15-11-2025 om 13:12
Merwedestraat, 3313GS Dordrecht

112 melding
Dinsdag 11-11-2025 om 21:51
Maasstraat, 3313GJ Dordrecht

112 melding
Maandag 10-11-2025 om 06:52
Vechtstraat, 3313GZ Dordrecht

112 melding
Zondag 9-11-2025 om 01:22
Alblasstraat, 3313GA Dordrecht

112 melding
Zondag 2-11-2025 om 18:07
Maasstraat, 3313GJ Dordrecht

112 melding
Zondag 2-11-2025 om 10:16
Dongestraat, 3313GC Dordrecht

112 melding
Zaterdag 1-11-2025 om 18:37
Alblasstraat, 3313GA Dordrecht

Nieuw bedrijf
Oktober 2025
Lingestraat 24, 3313GD Dordrecht

Direct een e-mail ontvangen bij nieuwe meldingen in deze regio?

Meld je dan GRATIS aan voor de Oozo Alert service voor Amerstraat en omgeving

Instellen

Meer nieuws in Amerstraat en omgeving

Weten hoe eenvoudig het is om af te vallen? Zonder pillen en smeersels en zonder je in het zweet te werken!
Kijk op eenvoudig-afvallen.nl

© 2012 - 2025 OOZO.nl - info@oozo.nl - Gegevens verwijderen? | Disclaimer | Privacy statement