Woning Hoendiep 21 Dordrecht

Hoendiep 21, 3313VA Dordrecht

Ontvang updates voor Merwedepolder-Oost

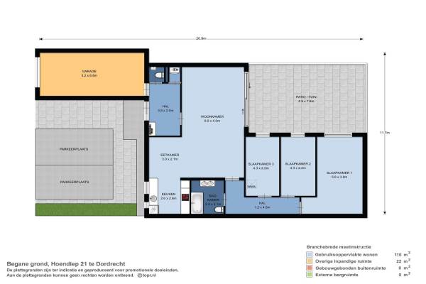
Het adres van deze woning uit 1975 is Hoendiep 21 te Dordrecht. Het pand heeft een oppervlakte van 110m² en een perceeloppervlakte van 218m² en heeft 4 kamers kamers waarvan 3 slaapkamers. De geschatte waarde van deze woning is € 254.000.

Bekijk alle woningen in Merwedepolder-Oost

Gegevens van Eengezinswoning, geschakelde woning (patiowoning)

Bouwjaar
1975
Geschatte waarde
€ 254.000
Oppervlakte
110 m2
Inhoud
350 m3
Aantal kamers
4 kamers
Slaapkamers
3
Badkamers
1 badkamer en 1 apart toilet
Soort bouw
Bestaande bouw
Eigendomssituatie
Volle eigendom
Ligging
Aan rustige weg, in woonwijk, vrij uitzicht en open ligging
Tuin
Voortuin en patio/atrium

Voorzieningen in de buurt

Boodschappen3,6 km
Grote supermarkt0,5 km
Cafetaria0,5 km
Restaurant0,5 km
Huisarts0,5 km
Ziekenhuis4,8 km
Kinderdagverblijf0,6 km
BSO0,6 km
Alle voorzieningen in Merwedepolder-Oost

Binnenkijken bij Hoendiep 21 te Dordrecht

Meer meldingen in deze omgeving

112 melding
Donderdag 23-4-2026 om 13:54
Haringvlietstraat, 3313ED Dordrecht

112 melding
Donderdag 23-4-2026 om 08:15
Haringvlietstraat, 3313EM Dordrecht

112 melding
Donderdag 23-4-2026 om 06:55
Haringvlietstraat, 3313ER Dordrecht

112 melding
Dinsdag 21-4-2026 om 09:32
Haringvlietstraat, 3313ER Dordrecht

112 melding
Dinsdag 21-4-2026 om 09:32
Haringvlietstraat, 3313ER Dordrecht

112 melding
Dinsdag 21-4-2026 om 08:35
Haringvlietstraat, 3313ET Dordrecht

112 melding
Maandag 20-4-2026 om 10:49
Haringvlietstraat, 3313EL Dordrecht

112 melding
Zondag 19-4-2026 om 14:39
Keteldiep, Dordrecht

Direct een e-mail ontvangen bij nieuwe meldingen in deze regio?

Meld je dan GRATIS aan voor de Oozo Alert service voor Merwedepolder-Oost

Instellen

Meer nieuws in Merwedepolder-Oost

Weten hoe eenvoudig het is om af te vallen? Zonder pillen en smeersels en zonder je in het zweet te werken!
Kijk op eenvoudig-afvallen.nl

© 2012 - 2026 OOZO.nl - info@oozo.nl - Gegevens verwijderen? | Disclaimer | Privacy statement