Woning Palissander 178 Dordrecht

Palissander 178, 3315MP Dordrecht

Ontvang updates voor Palissander en omgeving

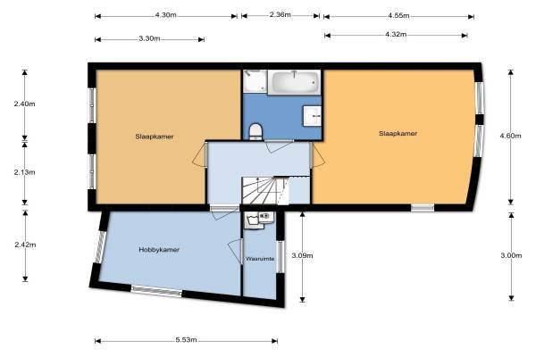
Het adres van deze woning uit 1994 is Palissander 178 te Dordrecht. Het pand heeft een oppervlakte van 133m² en een perceeloppervlakte van 325m² en heeft 4 kamers kamers waarvan 3 slaapkamers. De geschatte waarde van deze woning is € 329.000.

Bekijk alle woningen in Palissander en omgeving

Gegevens van Eengezinswoning, halfvrijstaande woning

Bouwjaar
1994
Geschatte waarde
€ 329.000
Oppervlakte
133 m2
Inhoud
420 m3
Aantal kamers
4 kamers
Slaapkamers
3
Badkamers
1 badkamer en 1 apart toilet
Soort bouw
Bestaande bouw
Eigendomssituatie
Volle eigendom
Ligging
Aan water, aan rustige weg en in woonwijk
Tuin
Achtertuin, voortuin en zijtuin
Achtertuin
108 m² (9m diep en 12m breed)

Voorzieningen in de buurt

Boodschappen0,6 km
Grote supermarkt0,7 km
Cafetaria0,6 km
Restaurant0,5 km
Huisarts0,6 km
Ziekenhuis3,6 km
Kinderdagverblijf0,3 km
BSO0,3 km
Alle voorzieningen in Palissander en omgeving

Binnenkijken bij Palissander 178 te Dordrecht

Meer meldingen in deze omgeving

112 melding
Dinsdag 30-12-2025 om 12:50
Chico Mendesring, 3315MB Dordrecht

112 melding
Dinsdag 30-12-2025 om 11:53
Chico Mendesring, 3315RL Dordrecht

112 melding
Dinsdag 30-12-2025 om 08:43
Chico Mendesring, 3315MB Dordrecht

112 melding
Dinsdag 30-12-2025 om 08:43
Chico Mendesring, 3315MB Dordrecht

Nieuw bedrijf
December 2025
Palissander 393, 3315MX Dordrecht

112 melding
Zondag 28-12-2025 om 11:59
Palissander, 3315MK Dordrecht

112 melding
Zondag 28-12-2025 om 00:17
Palissander, 3315MN Dordrecht

112 melding
Woensdag 24-12-2025 om 10:38
Chico Mendesring, 3315MB Dordrecht

Direct een e-mail ontvangen bij nieuwe meldingen in deze regio?

Meld je dan GRATIS aan voor de Oozo Alert service voor Palissander en omgeving

Instellen

Meer nieuws in Palissander en omgeving

Weten hoe eenvoudig het is om af te vallen? Zonder pillen en smeersels en zonder je in het zweet te werken!
Kijk op eenvoudig-afvallen.nl

© 2012 - 2025 OOZO.nl - info@oozo.nl - Gegevens verwijderen? | Disclaimer | Privacy statement