Woning Arentsburg 124 Dordrecht

Arentsburg 124, 3328TD Dordrecht

Ontvang updates voor Mildenburg en omgeving

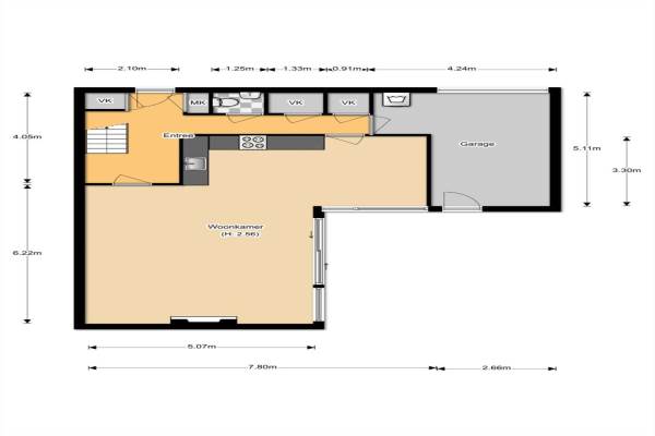
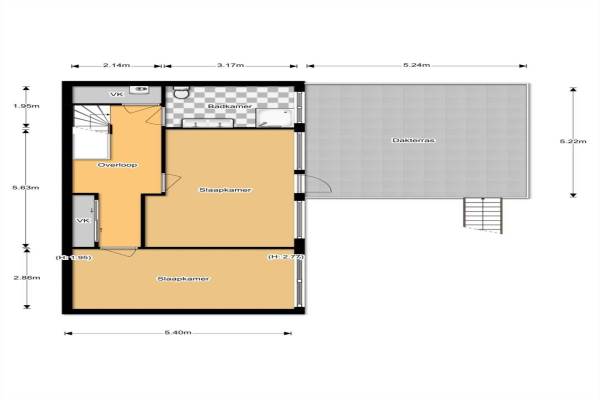
Het adres van deze woning uit 1976 is Arentsburg 124 te Dordrecht. Het pand heeft een oppervlakte van 122m² en een perceeloppervlakte van 148m² en heeft 3 kamers kamers waarvan 2 slaapkamers. De geschatte waarde van deze woning is € 259.000.

Bekijk alle woningen in Mildenburg en omgeving

Gegevens van Eengezinswoning, geschakelde woning (patiowoning)

Bouwjaar
1976
Geschatte waarde
€ 259.000
Oppervlakte
122 m2
Inhoud
390 m3
Aantal kamers
3 kamers
Slaapkamers
2
Badkamers
1 badkamer
Soort bouw
Bestaande bouw
Eigendomssituatie
Volle eigendom
Ligging
In woonwijk
Tuin
Patio/atrium

Voorzieningen in de buurt

Boodschappen1,6 km
Grote supermarkt0,8 km
Cafetaria0,7 km
Restaurant1,3 km
Huisarts1,0 km
Ziekenhuis2,4 km
Kinderdagverblijf0,3 km
BSO0,3 km
Alle voorzieningen in Mildenburg en omgeving

Binnenkijken bij Arentsburg 124 te Dordrecht

Meer meldingen in deze omgeving

112 melding
Donderdag 6-11-2025 om 19:32
Schuilenburg, 3328CJ Dordrecht

112 melding
Donderdag 6-11-2025 om 12:16
Schuilenburg, 3328CK Dordrecht

112 melding
Woensdag 5-11-2025 om 07:58
Essenburg, 3328CB Dordrecht

112 melding
Dinsdag 4-11-2025 om 15:58
Essenburg, 3328CD Dordrecht

112 melding
Dinsdag 4-11-2025 om 13:11
Arentsburg, 3328TA Dordrecht

112 melding
Maandag 3-11-2025 om 08:37
Schuilenburg, 3328CK Dordrecht

112 melding
Zondag 2-11-2025 om 16:08
Essenburg, 3328CB Dordrecht

112 melding
Zondag 2-11-2025 om 16:08
Essenburg, 3328CB Dordrecht

Direct een e-mail ontvangen bij nieuwe meldingen in deze regio?

Meld je dan GRATIS aan voor de Oozo Alert service voor Mildenburg en omgeving

Instellen

Meer nieuws in Mildenburg en omgeving

Weten hoe eenvoudig het is om af te vallen? Zonder pillen en smeersels en zonder je in het zweet te werken!
Kijk op eenvoudig-afvallen.nl

© 2012 - 2025 OOZO.nl - info@oozo.nl - Gegevens verwijderen? | Disclaimer | Privacy statement