Woning Essenburg 88 Dordrecht

Essenburg 88, 3328CD Dordrecht

Ontvang updates voor Mildenburg en omgeving

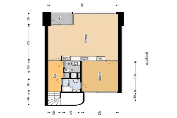
Het adres van deze woning uit 1980 is Essenburg 88 te Dordrecht. Het pand heeft een oppervlakte van 60m² en heeft 2 kamers kamers waarvan 1 slaapkamers. De geschatte waarde van deze woning is € 122.500.

Bekijk alle woningen in Mildenburg en omgeving

Gegevens van Galerijflat (appartement)

Bouwjaar
1980
Geschatte waarde
€ 122.500
Oppervlakte
60 m2
Inhoud
202 m3
Aantal kamers
2 kamers
Slaapkamers
1
Badkamers
1 badkamer
Soort bouw
Bestaande bouw
Eigendomssituatie
Volle eigendom
Ligging
In woonwijk

Voorzieningen in de buurt

Boodschappen1,6 km
Grote supermarkt0,8 km
Cafetaria0,7 km
Restaurant1,3 km
Huisarts1,0 km
Ziekenhuis2,4 km
Kinderdagverblijf0,3 km
BSO0,3 km
Alle voorzieningen in Mildenburg en omgeving

Binnenkijken bij Essenburg 88 te Dordrecht

Meer meldingen in deze omgeving

112 melding
Donderdag 23-10-2025 om 14:41
Ockenburg, 3328TH Dordrecht

112 melding
Donderdag 23-10-2025 om 07:54
Mildenburg, Dordrecht

112 melding
Donderdag 23-10-2025 om 02:55
Zwaluwenburg, 3328CT Dordrecht

112 melding
Woensdag 22-10-2025 om 20:20
Schuilenburg, 3328CM Dordrecht

112 melding
Woensdag 22-10-2025 om 14:40
Schuilenburg, Dordrecht

112 melding
Dinsdag 21-10-2025 om 23:38
Brittenburg, 3328JA Dordrecht

112 melding
Maandag 20-10-2025 om 15:43
Zwaluwenburg, 3328CS Dordrecht

112 melding
Maandag 20-10-2025 om 08:36
Mildenburg, Dordrecht

Direct een e-mail ontvangen bij nieuwe meldingen in deze regio?

Meld je dan GRATIS aan voor de Oozo Alert service voor Mildenburg en omgeving

Instellen

Meer nieuws in Mildenburg en omgeving

Weten hoe eenvoudig het is om af te vallen? Zonder pillen en smeersels en zonder je in het zweet te werken!
Kijk op eenvoudig-afvallen.nl

© 2012 - 2025 OOZO.nl - info@oozo.nl - Gegevens verwijderen? | Disclaimer | Privacy statement