Woning Marslaan 33 Dordrecht

Marslaan 33, 3318JE Dordrecht

Ontvang updates voor Sterrenburg 1-West

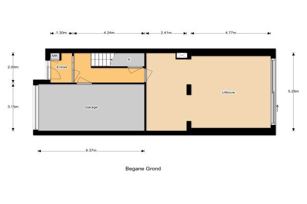
Het adres van deze woning uit 1971 is Marslaan 33 te Dordrecht. Het pand heeft een oppervlakte van 165m² en een perceeloppervlakte van 153m² en heeft 5 kamers kamers waarvan 3 slaapkamers. De geschatte waarde van deze woning is € 275.000.

Bekijk alle woningen in Sterrenburg 1-West

Gegevens van Eengezinswoning, tussenwoning (drive-in woning)

Bouwjaar
1971
Geschatte waarde
€ 275.000
Oppervlakte
165 m2
Inhoud
530 m3
Aantal kamers
5 kamers
Slaapkamers
3
Badkamers
1 badkamer en 1 apart toilet
Soort bouw
Bestaande bouw
Eigendomssituatie
Volle eigendom
Ligging
In woonwijk
Tuin
Achtertuin, voortuin en zonneterras
Achtertuin
83 m² (15m diep en 5,55m breed)

Voorzieningen in de buurt

Boodschappen0,4 km
Grote supermarkt0,4 km
Cafetaria0,4 km
Restaurant0,5 km
Huisarts1,0 km
Ziekenhuis1,2 km
Kinderdagverblijf0,7 km
BSO0,8 km
Alle voorzieningen in Sterrenburg 1-West

Binnenkijken bij Marslaan 33 te Dordrecht

Meer meldingen in deze omgeving

112 melding
Zaterdag 13-12-2025 om 07:37
Planetenlaan, 3318JJ Dordrecht

112 melding
Zaterdag 13-12-2025 om 07:37
Planetenlaan, 3318JJ Dordrecht

Nieuw bedrijf
December 2025
Uranuslaan 6, 3318EV Dordrecht

Nieuw bedrijf
December 2025
Sterrenburgplein 21, 3318JT Dordrecht

Nieuw bedrijf
December 2025
P.A. de Kok-plein 107, 3318JW Dordrecht

112 melding
Donderdag 11-12-2025 om 05:01
Planetenlaan, 3318JP Dordrecht

112 melding
Woensdag 10-12-2025 om 15:10
Marslaan, Dordrecht

112 melding
Woensdag 10-12-2025 om 15:10
Marslaan, Dordrecht

Direct een e-mail ontvangen bij nieuwe meldingen in deze regio?

Meld je dan GRATIS aan voor de Oozo Alert service voor Sterrenburg 1-West

Instellen

Meer nieuws in Sterrenburg 1-West

Weten hoe eenvoudig het is om af te vallen? Zonder pillen en smeersels en zonder je in het zweet te werken!
Kijk op eenvoudig-afvallen.nl

© 2012 - 2025 OOZO.nl - info@oozo.nl - Gegevens verwijderen? | Disclaimer | Privacy statement