Woning Goudestein 116 Dordrecht

Goudestein 116, 3328MD Dordrecht

Ontvang updates voor Wittenstein en omgeving

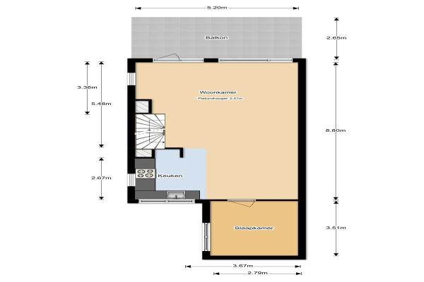
Het adres van deze woning uit 1979 is Goudestein 116 te Dordrecht. Het pand heeft een oppervlakte van 106m² en heeft 5 kamers kamers waarvan 3 slaapkamers. De geschatte waarde van deze woning is € 170.000.

Bekijk alle woningen in Wittenstein en omgeving

Gegevens van Maisonnette (appartement)

Bouwjaar
1979
Geschatte waarde
€ 170.000
Oppervlakte
106 m2
Inhoud
351 m3
Aantal kamers
5 kamers
Slaapkamers
3
Badkamers
1 badkamer en 1 apart toilet
Soort bouw
Bestaande bouw
Eigendomssituatie
Volle eigendom
Ligging
Aan rustige weg en in woonwijk

Voorzieningen in de buurt

Boodschappen2,1 km
Grote supermarkt1,1 km
Cafetaria1,0 km
Restaurant1,7 km
Huisarts1,3 km
Ziekenhuis2,9 km
Kinderdagverblijf0,3 km
BSO0,4 km
Alle voorzieningen in Wittenstein en omgeving

Binnenkijken bij Goudestein 116 te Dordrecht

Meer meldingen in deze omgeving

112 melding
Woensdag 29-4-2026 om 13:52
Arkelstein, 3328BA Dordrecht

112 melding
Woensdag 29-4-2026 om 13:51
Heimerstein, 3328MG Dordrecht

112 melding
Woensdag 29-4-2026 om 12:36
Goudestein, 3328MB Dordrecht

112 melding
Woensdag 29-4-2026 om 09:52
Remmerstein, 3328BL Dordrecht

112 melding
Woensdag 29-4-2026 om 07:21
Loevestein, 3328JK Dordrecht

112 melding
Woensdag 29-4-2026 om 07:21
Loevestein, 3328JK Dordrecht

112 melding
Woensdag 29-4-2026 om 07:21
Loevestein, 3328JK Dordrecht

112 melding
Dinsdag 28-4-2026 om 20:41
Heimerstein, 3328MG Dordrecht

Direct een e-mail ontvangen bij nieuwe meldingen in deze regio?

Meld je dan GRATIS aan voor de Oozo Alert service voor Wittenstein en omgeving

Instellen

Meer nieuws in Wittenstein en omgeving

Weten hoe eenvoudig het is om af te vallen? Zonder pillen en smeersels en zonder je in het zweet te werken!
Kijk op eenvoudig-afvallen.nl

© 2012 - 2026 OOZO.nl - info@oozo.nl - Gegevens verwijderen? | Disclaimer | Privacy statement