Woning Puttenstein 8 Dordrecht

Puttenstein 8, 3328BJ Dordrecht

Ontvang updates voor Wittenstein en omgeving

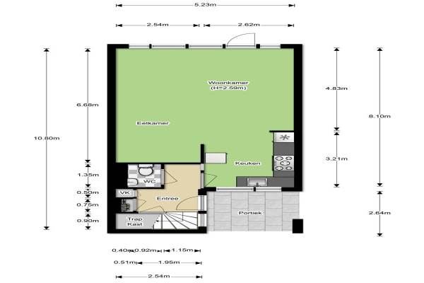
Het adres van deze woning uit 1976 is Puttenstein 8 te Dordrecht. Het pand heeft een oppervlakte van 98m² en een perceeloppervlakte van 132m² en heeft 4 kamers kamers waarvan 3 slaapkamers. De geschatte waarde van deze woning is € 189.500.

Bekijk alle woningen in Wittenstein en omgeving

Gegevens van Eengezinswoning, tussenwoning

Bouwjaar
1976
Geschatte waarde
€ 189.500
Oppervlakte
98 m2
Inhoud
345 m3
Aantal kamers
4 kamers
Slaapkamers
3
Badkamers
1 badkamer en 1 apart toilet
Soort bouw
Bestaande bouw
Eigendomssituatie
Volle eigendom
Ligging
Aan rustige weg, beschutte ligging en in woonwijk
Tuin
Achtertuin en voortuin
Achtertuin
49 m² (9,75m diep en 5m breed)

Voorzieningen in de buurt

Boodschappen2,1 km
Grote supermarkt1,1 km
Cafetaria1,0 km
Restaurant1,7 km
Huisarts1,3 km
Ziekenhuis2,9 km
Kinderdagverblijf0,3 km
BSO0,4 km
Alle voorzieningen in Wittenstein en omgeving

Binnenkijken bij Puttenstein 8 te Dordrecht

Meer meldingen in deze omgeving

112 melding
Vrijdag 17-10-2025 om 15:11
Weerdestein, 3328ML Dordrecht

112 melding
Vrijdag 17-10-2025 om 14:47
Loevestein, 3328JL Dordrecht

112 melding
Vrijdag 17-10-2025 om 14:47
Loevestein, 3328JL Dordrecht

112 melding
Vrijdag 17-10-2025 om 13:06
Weerdestein, 3328MN Dordrecht

112 melding
Donderdag 16-10-2025 om 20:26
Arkelstein, 3328BA Dordrecht

112 melding
Donderdag 16-10-2025 om 09:40
Arkelstein, Dordrecht

112 melding
Donderdag 16-10-2025 om 08:30
Remmerstein, 3328BL Dordrecht

112 melding
Woensdag 15-10-2025 om 14:15
Heimerstein, 3328ME Dordrecht

Direct een e-mail ontvangen bij nieuwe meldingen in deze regio?

Meld je dan GRATIS aan voor de Oozo Alert service voor Wittenstein en omgeving

Instellen

Meer nieuws in Wittenstein en omgeving

Weten hoe eenvoudig het is om af te vallen? Zonder pillen en smeersels en zonder je in het zweet te werken!
Kijk op eenvoudig-afvallen.nl

© 2012 - 2025 OOZO.nl - info@oozo.nl - Gegevens verwijderen? | Disclaimer | Privacy statement