Woning Beekenstein 34 Dordrecht

Beekenstein 34, 3328ZB Dordrecht

Ontvang updates voor Wittenstein en omgeving

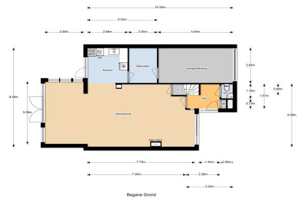
Het adres van deze woning uit 1978 is Beekenstein 34 te Dordrecht. Het pand heeft 5 kamers kamers waarvan 4 slaapkamers. De geschatte waarde van deze woning is € 399.500.

Bekijk alle woningen in Wittenstein en omgeving

Gegevens van Eengezinswoning, tussenwoning (waterwoning)

Bouwjaar
1978
Geschatte waarde
€ 399.500
Oppervlakte
0 m2
Inhoud
520 m3
Aantal kamers
5 kamers
Slaapkamers
4
Badkamers
1 badkamer en 1 apart toilet
Soort bouw
Bestaande bouw
Eigendomssituatie
Volle eigendom
Ligging
Aan water, in woonwijk, vrij uitzicht en landelijk gelegen
Tuin
Achtertuin en voortuin
Achtertuin
150 m² (17,2m diep en 8,2m breed)

Voorzieningen in de buurt

Boodschappen2,1 km
Grote supermarkt1,1 km
Cafetaria1,0 km
Restaurant1,7 km
Huisarts1,3 km
Ziekenhuis2,9 km
Kinderdagverblijf0,3 km
BSO0,4 km
Alle voorzieningen in Wittenstein en omgeving

Binnenkijken bij Beekenstein 34 te Dordrecht

Meer meldingen in deze omgeving

112 melding
Donderdag 30-4-2026 om 16:47
Arkelstein, 3328BA Dordrecht

112 melding
Donderdag 30-4-2026 om 16:36
Assumburg, 3328BG Dordrecht

112 melding
Donderdag 30-4-2026 om 11:08
Wittenstein, 3328MZ Dordrecht

112 melding
Woensdag 29-4-2026 om 13:52
Arkelstein, 3328BA Dordrecht

112 melding
Woensdag 29-4-2026 om 13:52
Arkelstein, 3328BA Dordrecht

112 melding
Woensdag 29-4-2026 om 13:51
Heimerstein, 3328MG Dordrecht

112 melding
Woensdag 29-4-2026 om 12:36
Goudestein, 3328MB Dordrecht

112 melding
Woensdag 29-4-2026 om 09:52
Remmerstein, 3328BL Dordrecht

Direct een e-mail ontvangen bij nieuwe meldingen in deze regio?

Meld je dan GRATIS aan voor de Oozo Alert service voor Wittenstein en omgeving

Instellen

Meer nieuws in Wittenstein en omgeving

Weten hoe eenvoudig het is om af te vallen? Zonder pillen en smeersels en zonder je in het zweet te werken!
Kijk op eenvoudig-afvallen.nl

© 2012 - 2026 OOZO.nl - info@oozo.nl - Gegevens verwijderen? | Disclaimer | Privacy statement