Woning Wilgewinde 2 Dordrecht

Wilgewinde 2, 3317ME Dordrecht

Ontvang updates voor Dordtse Hout

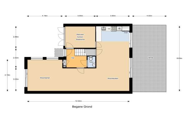
Het adres van deze woning uit 1997 is Wilgewinde 2 te Dordrecht. Het pand heeft een oppervlakte van 145m² en een perceeloppervlakte van 332m² en heeft 6 kamers kamers waarvan 4 slaapkamers. De geschatte waarde van deze woning is € 435.000.

Bekijk alle woningen in Dordtse Hout

Gegevens van Eengezinswoning, geschakelde woning

Bouwjaar
1997
Geschatte waarde
€ 435.000
Oppervlakte
145 m2
Inhoud
612 m3
Aantal kamers
6 kamers
Slaapkamers
4
Badkamers
1 badkamer en 2 aparte toiletten
Soort bouw
Bestaande bouw
Eigendomssituatie
Volle eigendom
Ligging
In woonwijk
Tuin
Voortuin en zonneterras

Voorzieningen in de buurt

Boodschappen1,4 km
Grote supermarkt1,4 km
Cafetaria1,5 km
Restaurant0,8 km
Huisarts1,6 km
Ziekenhuis3,9 km
Kinderdagverblijf1,5 km
BSO1,5 km
Alle voorzieningen in Dordtse Hout

Binnenkijken bij Wilgewinde 2 te Dordrecht

Meer meldingen in deze omgeving

112 melding
Dinsdag 11-11-2025 om 13:07
Haageinde, 3317MJ Dordrecht

112 melding
Donderdag 6-11-2025 om 10:59
Langedaal, 3317MA Dordrecht

112 melding
Woensdag 5-11-2025 om 18:54
Langedaal, 3317MA Dordrecht

112 melding
Maandag 3-11-2025 om 17:13
Langedaal, 3317MA Dordrecht

112 melding
Maandag 3-11-2025 om 15:54
Smitsweg, 3317NK Dordrecht

112 melding
Zaterdag 1-11-2025 om 12:00
Buitengrave, 3317MH Dordrecht

112 melding
Vrijdag 31-10-2025 om 16:04
Buitengrave, 3317MH Dordrecht

112 melding
Vrijdag 31-10-2025 om 15:56
Langedaal, 3317MA Dordrecht

Direct een e-mail ontvangen bij nieuwe meldingen in deze regio?

Meld je dan GRATIS aan voor de Oozo Alert service voor Dordtse Hout

Instellen

Meer nieuws in Dordtse Hout

Weten hoe eenvoudig het is om af te vallen? Zonder pillen en smeersels en zonder je in het zweet te werken!
Kijk op eenvoudig-afvallen.nl

© 2012 - 2025 OOZO.nl - info@oozo.nl - Gegevens verwijderen? | Disclaimer | Privacy statement