Woning Kerkweg 5 Venhuizen

Kerkweg 5, 1606AM Venhuizen

Ontvang updates voor De Buurt

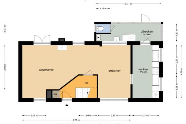
Het adres van deze woning uit 1905 is Kerkweg 5 te Venhuizen. Het pand heeft een oppervlakte van 125m² en een perceeloppervlakte van 380m² en heeft 5 kamers kamers waarvan 4 slaapkamers. De geschatte waarde van deze woning is € 409.000.

Bekijk alle woningen in De Buurt

Gegevens van Eengezinswoning, vrijstaande woning

Bouwjaar
1905
Geschatte waarde
€ 409.000
Oppervlakte
125 m2
Inhoud
472 m3
Aantal kamers
5 kamers
Slaapkamers
4
Badkamers
1 badkamer en 1 apart toilet
Soort bouw
Bestaande bouw
Eigendomssituatie
Volle eigendom
Ligging
Aan rustige weg en aan water
Tuin
Achtertuin, voortuin en zijtuin
Achtertuin
216 m² (18,00 meter diep en 12,00 meter breed)

Voorzieningen in de buurt

Boodschappen1,1 km
Grote supermarkt2,0 km
Cafetaria2,0 km
Restaurant1,9 km
Huisarts2,2 km
Ziekenhuis6,9 km
Kinderdagverblijf0,8 km
BSO0,9 km
Alle voorzieningen in De Buurt

Binnenkijken bij Kerkweg 5 te Venhuizen

Meer meldingen in deze omgeving

Nieuw bedrijf
November 2025
Burgemeester J. Zijpweg 21, 1606MK Venhuizen

112 melding
Zondag 16-11-2025 om 18:42
Kerkweg, 1606AP Venhuizen (North Holland)

112 melding
Zaterdag 15-11-2025 om 01:45
Visser-Roosendaalstraat, Venhuizen

112 melding
Vrijdag 14-11-2025 om 09:58
Meilag, 1606MC Venhuizen

112 melding
Vrijdag 14-11-2025 om 09:57
Meilag, Venhuizen

Nieuw bedrijf
November 2025
Burgemeester J. Zijpweg 21, 1606MK Venhuizen

Nieuw bedrijf
November 2025
Burgemeester J. Zijpweg 21, 1606MK Venhuizen

112 melding
Donderdag 13-11-2025 om 13:46
De Buurt, 1606AG Venhuizen

Direct een e-mail ontvangen bij nieuwe meldingen in deze regio?

Meld je dan GRATIS aan voor de Oozo Alert service voor De Buurt

Instellen

Meer nieuws in De Buurt

Weten hoe eenvoudig het is om af te vallen? Zonder pillen en smeersels en zonder je in het zweet te werken!
Kijk op eenvoudig-afvallen.nl

© 2012 - 2025 OOZO.nl - info@oozo.nl - Gegevens verwijderen? | Disclaimer | Privacy statement