Woning Joggerspad 4 Biddinghuizen

Joggerspad 4, 8256GM Biddinghuizen

Ontvang updates voor Bremerpark

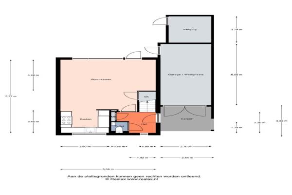
Het adres van deze woning uit 1995 is Joggerspad 4 te Biddinghuizen. Het pand heeft een oppervlakte van 97m² en een perceeloppervlakte van 222m² en heeft 4 kamers kamers waarvan 3 slaapkamers. De geschatte waarde van deze woning is € 285.000.

Bekijk alle woningen in Bremerpark

Gegevens van Hoekwoning

Bouwjaar
1995
Geschatte waarde
€ 285.000
Oppervlakte
97 m2
Inhoud
399 m3
Aantal kamers
4 kamers
Slaapkamers
3
Tuin
Tuin

Voorzieningen in de buurt

Boodschappen0,8 km
Grote supermarkt0,8 km
Cafetaria0,8 km
Restaurant0,9 km
Huisarts0,8 km
Ziekenhuis12,9 km
Kinderdagverblijf1,1 km
BSO1,1 km
Alle voorzieningen in Bremerpark

Binnenkijken bij Joggerspad 4 te Biddinghuizen

Meer meldingen in deze omgeving

112 melding
Donderdag 23-4-2026 om 20:11
Vliegersveld, 8256GN Biddinghuizen

112 melding
Donderdag 23-4-2026 om 19:49
Vliegersveld, 8256GN Biddinghuizen

112 melding
Donderdag 23-4-2026 om 19:47
Vliegersveld, 8256GN Biddinghuizen

112 melding
Donderdag 23-4-2026 om 19:39
Vliegersveld, 8256GN Biddinghuizen

Binnenkijken bij
Donderdag 16-4-2026
Dreef 59, 8256HA Biddinghuizen

Binnenkijken bij
Vrijdag 10-4-2026
Parksingel 70, 8256GC Biddinghuizen

Nieuw bedrijf
April 2026
Joggerspad 14, 8256GM Biddinghuizen

Binnenkijken bij
Donderdag 26-3-2026
Kampeerveld 11, 8256GP Biddinghuizen

Direct een e-mail ontvangen bij nieuwe meldingen in deze regio?

Meld je dan GRATIS aan voor de Oozo Alert service voor Bremerpark

Instellen

Meer nieuws in Bremerpark

Weten hoe eenvoudig het is om af te vallen? Zonder pillen en smeersels en zonder je in het zweet te werken!
Kijk op eenvoudig-afvallen.nl

© 2012 - 2026 OOZO.nl - info@oozo.nl - Gegevens verwijderen? | Disclaimer | Privacy statement