Woning Broodbakkersgilde 1 Dronten

Broodbakkersgilde 1, 8253HS Dronten

Ontvang updates voor De Gilden

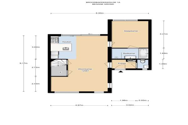
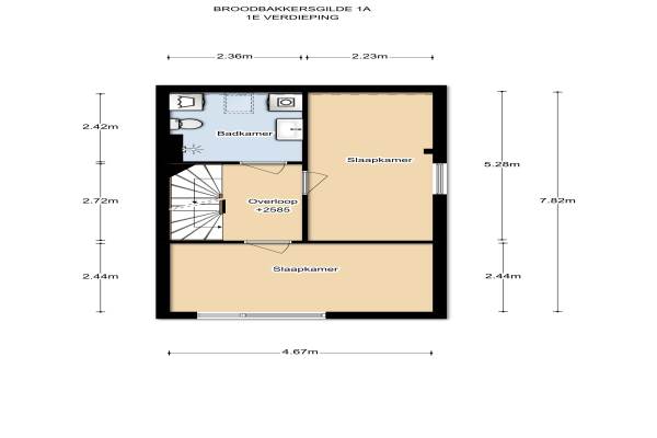
Het adres van deze woning uit 2010 is Broodbakkersgilde 1 te Dronten. Het pand heeft 5 kamers kamers waarvan 3 slaapkamers. De geschatte waarde van deze woning is € 237.500.

Bekijk alle woningen in De Gilden

Gegevens van Eengezinswoning, 2-onder-1-kapwoning

Bouwjaar
2010
Geschatte waarde
€ 237.500
Oppervlakte
0 m2
Inhoud
409 m3
Aantal kamers
5 kamers
Slaapkamers
3
Badkamers
2 badkamers en 1 apart toilet
Soort bouw
Bestaande bouw
Eigendomssituatie
Volle eigendom
Ligging
Aan rustige weg en in woonwijk
Tuin
Achtertuin, voortuin en zonneterras
Achtertuin
91 m² (9m diep en 10,15m breed)

Voorzieningen in de buurt

Boodschappen1,2 km
Grote supermarkt1,2 km
Cafetaria1,2 km
Restaurant1,2 km
Huisarts1,2 km
Ziekenhuis2,4 km
Kinderdagverblijf1,2 km
BSO1,0 km
Alle voorzieningen in De Gilden

Binnenkijken bij Broodbakkersgilde 1 te Dronten

Meer meldingen in deze omgeving

112 melding
Donderdag 25-12-2025 om 00:28
Timmerliedengilde, Dronten

Nieuw bedrijf
December 2025
Baksteen 65, 8253LB Dronten

Binnenkijken bij
Zaterdag 20-12-2025
Schoenmakersgilde 12, 8253HJ Dronten

Binnenkijken bij
Vrijdag 28-11-2025
Smidshamer 30, 8253LT Dronten

Nieuw bedrijf
November 2025
Bierdragersgilde 12, 8253JD Dronten

Binnenkijken bij
Vrijdag 21-11-2025
Weversgilde 38, 8253HG Dronten

Nieuw bedrijf
November 2025
Weversgilde 10, 8253HG Dronten

Binnenkijken bij
Vrijdag 14-11-2025
Timmerliedengilde 8, 8253HR Dronten

Direct een e-mail ontvangen bij nieuwe meldingen in deze regio?

Meld je dan GRATIS aan voor de Oozo Alert service voor De Gilden

Instellen

Meer nieuws in De Gilden

Weten hoe eenvoudig het is om af te vallen? Zonder pillen en smeersels en zonder je in het zweet te werken!
Kijk op eenvoudig-afvallen.nl

© 2012 - 2025 OOZO.nl - info@oozo.nl - Gegevens verwijderen? | Disclaimer | Privacy statement