Woning Middelwaard 12 Horssen

Middelwaard 12, 6631BJ Horssen

Ontvang updates voor Horssen Buitengebied

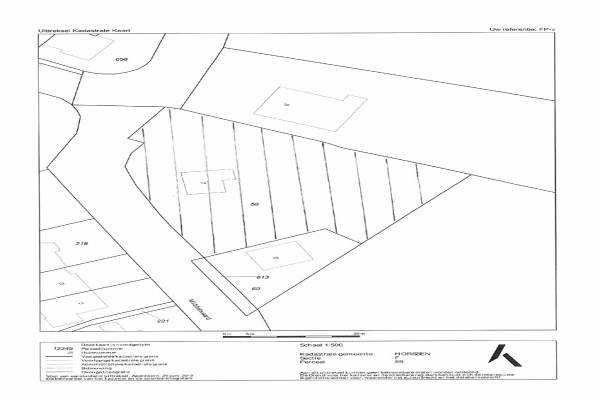
Het adres van deze woning uit 1969 is Middelwaard 12 te Horssen. Het pand heeft een oppervlakte van 117m² en een perceeloppervlakte van 2120m² en heeft 5 kamers kamers waarvan 4 slaapkamers. De geschatte waarde van deze woning is € 300.000.

Bekijk alle woningen in Horssen Buitengebied

Gegevens van Eengezinswoning, vrijstaande woning

Bouwjaar
1969
Geschatte waarde
€ 300.000
Oppervlakte
117 m2
Inhoud
510 m3
Aantal kamers
5 kamers
Slaapkamers
4
Badkamers
1 badkamer en 1 apart toilet
Soort bouw
Bestaande bouw
Eigendomssituatie
Volle eigendom
Ligging
Aan rustige weg en open ligging
Tuin
Achtertuin, voortuin en tuin rondom
Achtertuin
1.900 m² (40m diep en 47,5m breed)

Voorzieningen in de buurt

Boodschappen3,7 km
Grote supermarkt1,1 km
Cafetaria3,1 km
Restaurant4,0 km
Huisarts1,5 km
Ziekenhuis6,0 km
Kinderdagverblijf1,5 km
BSO1,5 km
Alle voorzieningen in Horssen Buitengebied

Binnenkijken bij Middelwaard 12 te Horssen

Meer meldingen in deze omgeving

Binnenkijken bij
Dinsdag 25-11-2025
Roedensestraat 25, 6631BE Horssen

Nieuw bedrijf
November 2025
Singel 8, 6631BM Horssen

Nieuw bedrijf
Oktober 2025
Langesteeg 4, 6631KN Horssen

Nieuw bedrijf
Oktober 2025
Singel 8, 6631BM Horssen

112 melding
Zaterdag 20-9-2025 om 22:23
Middelwaard, 6631BJ Horssen

112 melding
Zaterdag 20-9-2025 om 22:22
Middelwaard, 6631BJ Horssen

112 melding
Zaterdag 20-9-2025 om 22:21
Middelwaard, 6631BJ Horssen

112 melding
Zaterdag 20-9-2025 om 22:20
Middelwaard, 6631BJ Horssen

Direct een e-mail ontvangen bij nieuwe meldingen in deze regio?

Meld je dan GRATIS aan voor de Oozo Alert service voor Horssen Buitengebied

Instellen

Meer nieuws in Horssen Buitengebied

Weten hoe eenvoudig het is om af te vallen? Zonder pillen en smeersels en zonder je in het zweet te werken!
Kijk op eenvoudig-afvallen.nl

© 2012 - 2026 OOZO.nl - info@oozo.nl - Gegevens verwijderen? | Disclaimer | Privacy statement