Woning Hogeweg 6 Duiven

Hogeweg 6, 6921PP Duiven

Ontvang updates voor Noord

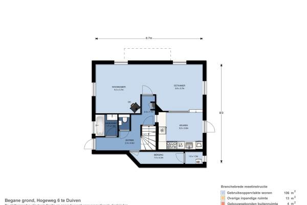
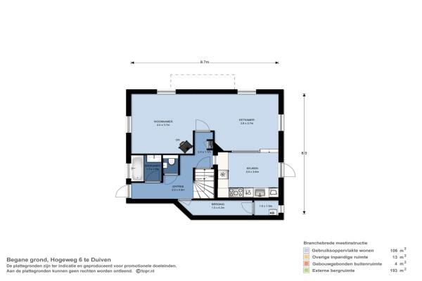
Het adres van deze woning uit 1920 is Hogeweg 6 te Duiven. Het pand heeft een oppervlakte van 106m² en een perceeloppervlakte van 580m² en heeft 5 kamers kamers waarvan 4 slaapkamers. De geschatte waarde van deze woning is € 300.000.

Bekijk alle woningen in Noord

Gegevens van Woonboerderij, 2-onder-1-kapwoning

Bouwjaar
1920
Geschatte waarde
€ 300.000
Oppervlakte
106 m2
Inhoud
300 m3
Aantal kamers
5 kamers
Slaapkamers
4
Badkamers
1 apart toilet
Soort bouw
Bestaande bouw
Eigendomssituatie
Volle eigendom
Ligging
Aan rustige weg, vrij uitzicht, open ligging en landelijk gelegen
Tuin
Achtertuin, voortuin, zijtuin en zonneterras

Voorzieningen in de buurt

Boodschappen0,5 km
Grote supermarkt0,6 km
Cafetaria0,5 km
Restaurant0,4 km
Huisarts0,6 km
Ziekenhuis4,3 km
Kinderdagverblijf0,3 km
BSO0,3 km
Alle voorzieningen in Noord

Binnenkijken bij Hogeweg 6 te Duiven

Meer meldingen in deze omgeving

112 melding
Donderdag 25-12-2025 om 18:52
Borgersstraat, 6921AB Duiven

112 melding
Donderdag 25-12-2025 om 18:52
Borgersstraat, 6921AB Duiven

112 melding
Dinsdag 23-12-2025 om 22:21
Lombokstraat, 6921ZW Duiven

112 melding
Dinsdag 23-12-2025 om 22:21
Lombokstraat, 6921ZW Duiven

112 melding
Dinsdag 23-12-2025 om 22:21
Lombokstraat, 6921ZW Duiven

Nieuw bedrijf
December 2025
Julianastraat 11, 6921ZK Duiven

112 melding
Dinsdag 16-12-2025 om 09:27
Oranjestraat, 6921ZJ Duiven

112 melding
Zondag 14-12-2025 om 16:08
Oranjestraat, 6921ZJ Duiven

Direct een e-mail ontvangen bij nieuwe meldingen in deze regio?

Meld je dan GRATIS aan voor de Oozo Alert service voor Noord

Instellen

Meer nieuws in Noord

Weten hoe eenvoudig het is om af te vallen? Zonder pillen en smeersels en zonder je in het zweet te werken!
Kijk op eenvoudig-afvallen.nl

© 2012 - 2025 OOZO.nl - info@oozo.nl - Gegevens verwijderen? | Disclaimer | Privacy statement