Woning Walcherenstraat 10 Duiven

Walcherenstraat 10, 6922DD Duiven

Ontvang updates voor Zuidoost

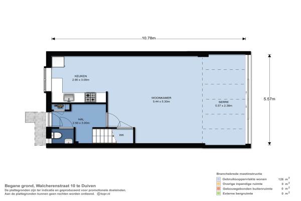
Het adres van deze woning uit 1991 is Walcherenstraat 10 te Duiven. Het pand heeft een oppervlakte van 124m² en een perceeloppervlakte van 131m² en heeft 5 kamers kamers waarvan 4 slaapkamers. De geschatte waarde van deze woning is € 189.500.

Bekijk alle woningen in Zuidoost

Gegevens van Eengezinswoning, tussenwoning

Bouwjaar
1991
Geschatte waarde
€ 189.500
Oppervlakte
124 m2
Inhoud
390 m3
Aantal kamers
5 kamers
Slaapkamers
4
Badkamers
1 badkamer en 1 apart toilet
Soort bouw
Bestaande bouw
Eigendomssituatie
Volle eigendom
Ligging
In woonwijk
Tuin
Achtertuin en voortuin
Achtertuin
47 m² (8,5m diep en 5,5m breed)

Voorzieningen in de buurt

Boodschappen0,7 km
Grote supermarkt0,7 km
Cafetaria0,8 km
Restaurant0,7 km
Huisarts1,0 km
Ziekenhuis5,6 km
Kinderdagverblijf0,6 km
BSO0,6 km
Alle voorzieningen in Zuidoost

Binnenkijken bij Walcherenstraat 10 te Duiven

Meer meldingen in deze omgeving

112 melding
Woensdag 11-2-2026 om 11:11
Eilandplein, 6922EN Duiven

112 melding
Woensdag 11-2-2026 om 10:38
6922HS Duiven

112 melding
Woensdag 11-2-2026 om 10:38
6922HS Duiven

112 melding
Woensdag 11-2-2026 om 10:27
Vlielandlaan, 6922EC Duiven

112 melding
Woensdag 11-2-2026 om 10:27
Vlielandlaan, 6922EC Duiven

112 melding
Woensdag 11-2-2026 om 10:17
Stekelzegge, 6922GJ Duiven

112 melding
Dinsdag 10-2-2026 om 19:57
Melrose, 6922BE Duiven

112 melding
Dinsdag 10-2-2026 om 19:57
Melrose, 6922BE Duiven

Direct een e-mail ontvangen bij nieuwe meldingen in deze regio?

Meld je dan GRATIS aan voor de Oozo Alert service voor Zuidoost

Instellen

Meer nieuws in Zuidoost

Weten hoe eenvoudig het is om af te vallen? Zonder pillen en smeersels en zonder je in het zweet te werken!
Kijk op eenvoudig-afvallen.nl

© 2012 - 2026 OOZO.nl - info@oozo.nl - Gegevens verwijderen? | Disclaimer | Privacy statement