Woning Mussenstraat 2 Echt

Mussenstraat 2, 6101CS Echt

Ontvang updates voor Echt Centrum

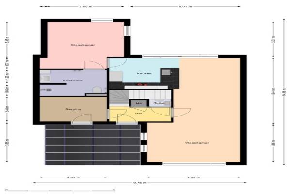
Het adres van deze woning uit 2018 is Mussenstraat 2 te Echt. Het pand heeft een oppervlakte van 131m² en een perceeloppervlakte van 212m² en heeft 5 kamers kamers waarvan 4 slaapkamers. De geschatte waarde van deze woning is € 425.000.

Bekijk alle woningen in Echt Centrum

Gegevens van Eengezinswoning

Bouwjaar
2018
Geschatte waarde
€ 425.000
Oppervlakte
131 m2
Inhoud
580 m3
Aantal kamers
5 kamers
Slaapkamers
4
Badkamers
2 badkamers en 2 aparte toiletten
Soort bouw
Bestaande bouw
Tuin
Tuin

Voorzieningen in de buurt

Boodschappen0,3 km
Grote supermarkt0,4 km
Cafetaria0,3 km
Restaurant0,4 km
Huisarts0,5 km
Ziekenhuis0,6 km
Kinderdagverblijf0,4 km
BSO0,4 km
Alle voorzieningen in Echt Centrum

Binnenkijken bij Mussenstraat 2 te Echt

Meer meldingen in deze omgeving

112 melding
Donderdag 7-5-2026 om 22:03
Bovenste straat, 6101EK Echt

112 melding
Donderdag 7-5-2026 om 22:03
Bovenste straat, 6101EK Echt

112 melding
Donderdag 7-5-2026 om 15:08
Maaseikerpoort, 6101DC Echt

112 melding
Donderdag 7-5-2026 om 14:10
Maaseikerpoort, 6101DC Echt

112 melding
Woensdag 6-5-2026 om 19:27
Prins Bernhardstraat, 6101ED Echt

112 melding
Woensdag 6-5-2026 om 19:27
Prins Bernhardstraat, 6101ED Echt

112 melding
Woensdag 6-5-2026 om 15:18
Edith Steinstraat, 6101DR Echt

112 melding
Woensdag 6-5-2026 om 11:13
Plats, 6101AP Echt

Direct een e-mail ontvangen bij nieuwe meldingen in deze regio?

Meld je dan GRATIS aan voor de Oozo Alert service voor Echt Centrum

Instellen

Meer nieuws in Echt Centrum

Weten hoe eenvoudig het is om af te vallen? Zonder pillen en smeersels en zonder je in het zweet te werken!
Kijk op eenvoudig-afvallen.nl

© 2012 - 2026 OOZO.nl - info@oozo.nl - Gegevens verwijderen? | Disclaimer | Privacy statement