Woning Peijerstraat 103 Echt

Peijerstraat 103, 6101GC Echt

Ontvang updates voor Echt Centrum

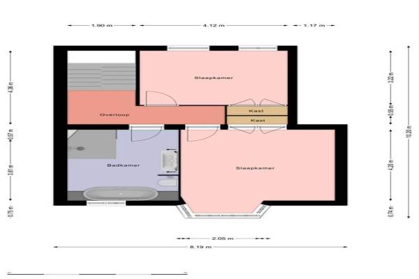
Het adres van deze woning uit 1934 is Peijerstraat 103 te Echt. Het pand heeft een oppervlakte van 167m² en een perceeloppervlakte van 332m² en heeft 3 kamers kamers waarvan 2 slaapkamers. De geschatte waarde van deze woning is € 310.000.

Bekijk alle woningen in Echt Centrum

Gegevens van Herenhuis

Bouwjaar
1934
Geschatte waarde
€ 310.000
Oppervlakte
167 m2
Inhoud
805 m3
Aantal kamers
3 kamers
Slaapkamers
2
Badkamers
1 badkamer en 1 apart toilet
Soort bouw
Bestaande bouw
Ligging
Aan drukke weg en in woonwijk
Tuin
Tuin

Voorzieningen in de buurt

Boodschappen0,3 km
Grote supermarkt0,4 km
Cafetaria0,3 km
Restaurant0,4 km
Huisarts0,5 km
Ziekenhuis0,6 km
Kinderdagverblijf0,4 km
BSO0,4 km
Alle voorzieningen in Echt Centrum

Binnenkijken bij Peijerstraat 103 te Echt

Meer meldingen in deze omgeving

112 melding
Vrijdag 30-1-2026 om 15:26
Steeg, 6101AR Echt

112 melding
Vrijdag 30-1-2026 om 15:26
Steeg, 6101AR Echt

112 melding
Vrijdag 30-1-2026 om 13:28
Jodenstraat, 6101AS Echt

112 melding
Donderdag 29-1-2026 om 14:00
Peijerstraat, 6101GG Echt

112 melding
Woensdag 28-1-2026 om 09:36
Jodenstraat, 6101AS Echt

112 melding
Dinsdag 27-1-2026 om 16:29
Prinses Margrietstraat, 6101HN Echt

112 melding
Dinsdag 27-1-2026 om 15:53
Kerkveldsweg West, 6101HR Echt

112 melding
Dinsdag 27-1-2026 om 15:28
Peijerstraat, 6101GG Echt

Direct een e-mail ontvangen bij nieuwe meldingen in deze regio?

Meld je dan GRATIS aan voor de Oozo Alert service voor Echt Centrum

Instellen

Meer nieuws in Echt Centrum

Weten hoe eenvoudig het is om af te vallen? Zonder pillen en smeersels en zonder je in het zweet te werken!
Kijk op eenvoudig-afvallen.nl

© 2012 - 2026 OOZO.nl - info@oozo.nl - Gegevens verwijderen? | Disclaimer | Privacy statement