Woning Rozenstraat 59a Echt

Rozenstraat 59a, 6101NA Echt

Ontvang updates voor Schilberg

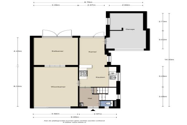
Het adres van deze woning uit 1963 is Rozenstraat 59a te Echt. Het pand heeft een oppervlakte van 115m² en een perceeloppervlakte van 272m² en heeft 6 kamers kamers waarvan 3 slaapkamers. De geschatte waarde van deze woning is € 219.000.

Bekijk alle woningen in Schilberg

Gegevens van Eengezinswoning, geschakelde 2-onder-1-kapwoning

Bouwjaar
1963
Geschatte waarde
€ 219.000
Oppervlakte
115 m2
Inhoud
443 m3
Aantal kamers
6 kamers
Slaapkamers
3
Badkamers
1 apart toilet
Soort bouw
Bestaande bouw
Eigendomssituatie
Volle eigendom
Ligging
Aan rustige weg, in woonwijk en in bosrijke omgeving
Tuin
Achtertuin en voortuin
Achtertuin
105 m² (11m diep en 9,5m breed)

Voorzieningen in de buurt

Boodschappen0,3 km
Grote supermarkt0,8 km
Cafetaria0,3 km
Restaurant0,5 km
Huisarts0,9 km
Ziekenhuis1,1 km
Kinderdagverblijf0,9 km
BSO0,8 km
Alle voorzieningen in Schilberg

Binnenkijken bij Rozenstraat 59a te Echt

Meer meldingen in deze omgeving

112 melding
Zaterdag 17-1-2026 om 12:41
Oude Molenweg, Echt

112 melding
Dinsdag 13-1-2026 om 09:35
Kerkveldsweg Oost, 6101NN Echt

112 melding
Dinsdag 13-1-2026 om 09:35
Kerkveldsweg Oost, 6101NN Echt

112 melding
Maandag 12-1-2026 om 09:15
Hyacintenstraat, 6101NL Echt

112 melding
Maandag 12-1-2026 om 09:07
Seringenstraat, 6101NG Echt

112 melding
Zondag 11-1-2026 om 12:00
Grote Tiend, 6101VB Echt

112 melding
Zondag 11-1-2026 om 00:38
Bandertlaan, Echt

112 melding
Zondag 11-1-2026 om 00:36
Bandertlaan, Echt

Direct een e-mail ontvangen bij nieuwe meldingen in deze regio?

Meld je dan GRATIS aan voor de Oozo Alert service voor Schilberg

Instellen

Meer nieuws in Schilberg

Weten hoe eenvoudig het is om af te vallen? Zonder pillen en smeersels en zonder je in het zweet te werken!
Kijk op eenvoudig-afvallen.nl

© 2012 - 2026 OOZO.nl - info@oozo.nl - Gegevens verwijderen? | Disclaimer | Privacy statement