Woning Vogelzand 23 Volendam

Vogelzand 23, 1132MJ Volendam

Ontvang updates voor Broeckgouw

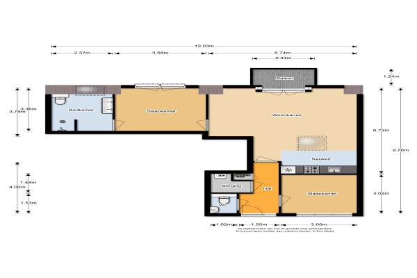
Het adres van deze woning uit 2013 is Vogelzand 23 te Volendam. Het pand heeft een oppervlakte van 71m² en heeft 3 kamers kamers waarvan 2 slaapkamers. De geschatte waarde van deze woning is € 240.000.

Bekijk alle woningen in Broeckgouw

Gegevens van Galerijflat (appartement)

Bouwjaar
2013
Geschatte waarde
€ 240.000
Oppervlakte
71 m2
Inhoud
240 m3
Aantal kamers
3 kamers
Slaapkamers
2
Badkamers
1 badkamer en 1 apart toilet
Soort bouw
Bestaande bouw
Eigendomssituatie
Volle eigendom
Ligging
Aan rustige weg, in woonwijk en vrij uitzicht

Voorzieningen in de buurt

Boodschappen0,4 km
Grote supermarkt0,5 km
Cafetaria1,7 km
Restaurant2,2 km
Huisarts2,4 km
Ziekenhuis3,3 km
Kinderdagverblijf1,9 km
BSO0,6 km
Alle voorzieningen in Broeckgouw

Binnenkijken bij Vogelzand 23 te Volendam

Meer meldingen in deze omgeving

Nieuw bedrijf
November 2025
Wieringenlaan 113, 1132MB Volendam

Nieuw bedrijf
November 2025
Doggersbank 25, 1132LM Volendam

Nieuw bedrijf
November 2025
Wieringenlaan 96, 1132MB Volendam

Nieuw bedrijf
November 2025
Meeuweplaat 14, 1132ND Volendam

112 melding
Zaterdag 8-11-2025 om 21:46
Nieuwedieplaan, 1132LG Volendam

112 melding
Zaterdag 8-11-2025 om 21:43
Nieuwedieplaan, 1132LG Volendam

112 melding
Zaterdag 8-11-2025 om 00:12
Wieringenlaan, 1132MB Volendam

112 melding
Donderdag 6-11-2025 om 10:18
Nieuwedieplaan, 1132LG Volendam

Direct een e-mail ontvangen bij nieuwe meldingen in deze regio?

Meld je dan GRATIS aan voor de Oozo Alert service voor Broeckgouw

Instellen

Meer nieuws in Broeckgouw

Weten hoe eenvoudig het is om af te vallen? Zonder pillen en smeersels en zonder je in het zweet te werken!
Kijk op eenvoudig-afvallen.nl

© 2012 - 2025 OOZO.nl - info@oozo.nl - Gegevens verwijderen? | Disclaimer | Privacy statement