Woning Margrietlaan 65 Bennekom

Margrietlaan 65, 6721EL Bennekom

Ontvang updates voor Bennekom-Zuidoost

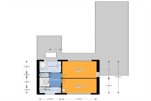
Het adres van deze woning uit 1954 is Margrietlaan 65 te Bennekom. Het pand heeft een oppervlakte van 142m² en een perceeloppervlakte van 560m² en heeft 5 kamers kamers waarvan 4 slaapkamers. De geschatte waarde van deze woning is € 395.000.

Bekijk alle woningen in Bennekom-Zuidoost

Gegevens van Eengezinswoning, halfvrijstaande woning

Bouwjaar
1954
Geschatte waarde
€ 395.000
Oppervlakte
142 m2
Inhoud
403 m3
Aantal kamers
5 kamers
Slaapkamers
4
Soort bouw
Bestaande bouw
Eigendomssituatie
Volle eigendom
Tuin
Achtertuin
Achtertuin
360 m² (40m diep en 9m breed)

Voorzieningen in de buurt

Boodschappen0,4 km
Grote supermarkt0,5 km
Cafetaria0,6 km
Restaurant0,6 km
Huisarts0,7 km
Ziekenhuis4,0 km
Kinderdagverblijf0,9 km
BSO0,7 km
Alle voorzieningen in Bennekom-Zuidoost

Binnenkijken bij Margrietlaan 65 te Bennekom

Meer meldingen in deze omgeving

Nieuw bedrijf
Januari 2026
Midden-Eng 60, 6721GZ Bennekom

Nieuw bedrijf
Januari 2026
Midden-Eng 60, 6721GZ Bennekom

Binnenkijken bij
Woensdag 21-1-2026
Jerfaasplantsoen 6, 6721HC Bennekom

Binnenkijken bij
Woensdag 21-1-2026
Kerkhoflaan 39, 6721EW Bennekom

Nieuw bedrijf
Januari 2026
Hullenbergweg 5, 6721AN Bennekom

Binnenkijken bij
Vrijdag 16-1-2026
Margrietlaan 21, 6721EK Bennekom

Binnenkijken bij
Donderdag 15-1-2026
Bosweg 23, 6721HM Bennekom

Binnenkijken bij
Vrijdag 9-1-2026
Midden-Eng 36, 6721GX Bennekom

Direct een e-mail ontvangen bij nieuwe meldingen in deze regio?

Meld je dan GRATIS aan voor de Oozo Alert service voor Bennekom-Zuidoost

Instellen

Meer nieuws in Bennekom-Zuidoost

Weten hoe eenvoudig het is om af te vallen? Zonder pillen en smeersels en zonder je in het zweet te werken!
Kijk op eenvoudig-afvallen.nl

© 2012 - 2026 OOZO.nl - info@oozo.nl - Gegevens verwijderen? | Disclaimer | Privacy statement