Woning Bovenweg 16 Bennekom

Bovenweg 16, 6721HW Bennekom

Ontvang updates voor Boekelo

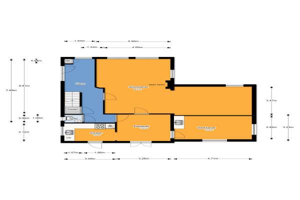
Het adres van deze woning uit 1939 is Bovenweg 16 te Bennekom. Het pand heeft een oppervlakte van 320m² en een perceeloppervlakte van 1765m² en heeft 6 kamers kamers waarvan 3 slaapkamers. De geschatte waarde van deze woning is € 695.000.

Bekijk alle woningen in Boekelo

Gegevens van Eengezinswoning, vrijstaande woning

Bouwjaar
1939
Geschatte waarde
€ 695.000
Oppervlakte
320 m2
Inhoud
599 m3
Aantal kamers
6 kamers
Slaapkamers
3
Badkamers
1 apart toilet
Soort bouw
Bestaande bouw
Eigendomssituatie
Volle eigendom
Ligging
In woonwijk
Tuin
Achtertuin, voortuin en zijtuin
Achtertuin
1.150 m² (57,5m diep en 20m breed)

Voorzieningen in de buurt

Boodschappen0,5 km
Grote supermarkt0,6 km
Cafetaria0,5 km
Restaurant0,6 km
Huisarts0,5 km
Ziekenhuis3,5 km
Kinderdagverblijf0,5 km
BSO0,5 km
Alle voorzieningen in Boekelo

Binnenkijken bij Bovenweg 16 te Bennekom

Meer meldingen in deze omgeving

112 melding
Zondag 18-1-2026 om 17:38
Hof van Sint Pieter, Bennekom

112 melding
Donderdag 15-1-2026 om 17:42
Kierkamperweg, 6721TE Bennekom

Binnenkijken bij
Donderdag 15-1-2026
Schuurhoven 3, 6721SM Bennekom

Binnenkijken bij
Dinsdag 13-1-2026
Van Brienenstraat 710, 6721VW Bennekom

112 melding
Zaterdag 10-1-2026 om 11:09
Hofrustlaan, Bennekom

112 melding
Maandag 5-1-2026 om 07:37
Kierkamperweg, 6721TE Bennekom

112 melding
Maandag 5-1-2026 om 04:43
Kierkamperweg, 6721TE Bennekom

112 melding
Maandag 5-1-2026 om 04:43
Kierkamperweg, 6721TE Bennekom

Direct een e-mail ontvangen bij nieuwe meldingen in deze regio?

Meld je dan GRATIS aan voor de Oozo Alert service voor Boekelo

Instellen

Meer nieuws in Boekelo

Weten hoe eenvoudig het is om af te vallen? Zonder pillen en smeersels en zonder je in het zweet te werken!
Kijk op eenvoudig-afvallen.nl

© 2012 - 2026 OOZO.nl - info@oozo.nl - Gegevens verwijderen? | Disclaimer | Privacy statement