Woning Commandeursweg 42 Bennekom

Commandeursweg 42, 6721TZ Bennekom

Ontvang updates voor Boekelo

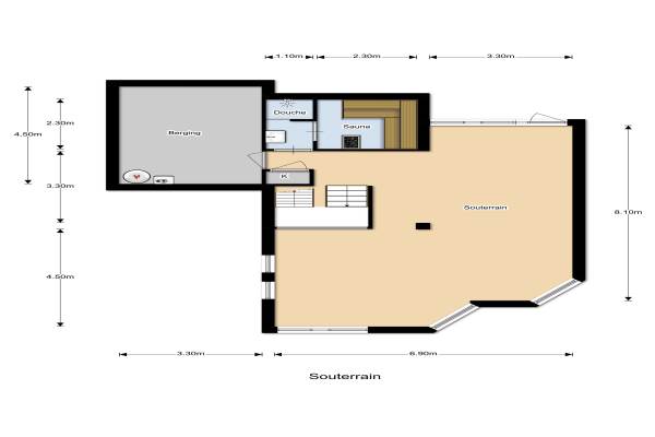
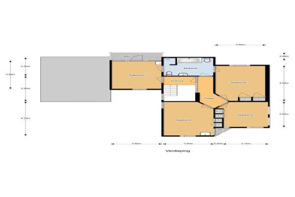
Het adres van deze woning uit 1980 is Commandeursweg 42 te Bennekom. Het pand heeft een oppervlakte van 212m² en een perceeloppervlakte van 465m² en heeft 6 kamers kamers waarvan 4 slaapkamers. De geschatte waarde van deze woning is € 539.000.

Bekijk alle woningen in Boekelo

Gegevens van Eengezinswoning, halfvrijstaande woning

Bouwjaar
1980
Geschatte waarde
€ 539.000
Oppervlakte
212 m2
Inhoud
833 m3
Aantal kamers
6 kamers
Slaapkamers
4
Badkamers
2 badkamers en 1 apart toilet
Soort bouw
Bestaande bouw
Eigendomssituatie
Volle eigendom
Ligging
In woonwijk
Tuin
Achtertuin en voortuin
Achtertuin
113 m² (7,5m diep en 15m breed)

Voorzieningen in de buurt

Boodschappen0,5 km
Grote supermarkt0,6 km
Cafetaria0,5 km
Restaurant0,6 km
Huisarts0,5 km
Ziekenhuis3,5 km
Kinderdagverblijf0,5 km
BSO0,5 km
Alle voorzieningen in Boekelo

Binnenkijken bij Commandeursweg 42 te Bennekom

Meer meldingen in deze omgeving

112 melding
Maandag 2-3-2026 om 15:01
Groenestraat, Bennekom

112 melding
Zaterdag 28-2-2026 om 10:58
Achterstraat, 6721VM Bennekom

112 melding
Zaterdag 28-2-2026 om 10:58
Achterstraat, 6721VM Bennekom

112 melding
Zaterdag 28-2-2026 om 10:54
Achterstraat, 6721VM Bennekom

112 melding
Zaterdag 28-2-2026 om 10:54
Achterstraat, 6721VM Bennekom

112 melding
Woensdag 25-2-2026 om 17:08
Kierkamperweg, 6721TE Bennekom

Nieuw bedrijf
Februari 2026
Breehoven 105, 6721SE Bennekom

Binnenkijken bij
Zondag 22-2-2026
Langhoven 32, 6721SK Bennekom

Direct een e-mail ontvangen bij nieuwe meldingen in deze regio?

Meld je dan GRATIS aan voor de Oozo Alert service voor Boekelo

Instellen

Meer nieuws in Boekelo

Weten hoe eenvoudig het is om af te vallen? Zonder pillen en smeersels en zonder je in het zweet te werken!
Kijk op eenvoudig-afvallen.nl

© 2012 - 2026 OOZO.nl - info@oozo.nl - Gegevens verwijderen? | Disclaimer | Privacy statement