Woning Burgemeester Prinslaan 28 Ede

Burgemeester Prinslaan 28, 6711KD Ede

Ontvang updates voor Burgemeestersbuurt

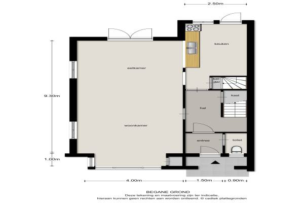
Het adres van deze woning uit 1932 is Burgemeester Prinslaan 28 te Ede. Het pand heeft een oppervlakte van 155m² en een perceeloppervlakte van 380m² en heeft 6 kamers kamers waarvan 5 slaapkamers. De geschatte waarde van deze woning is € 500.000.

Bekijk alle woningen in Burgemeestersbuurt

Gegevens van Eengezinswoning, 2-onder-1-kapwoning

Bouwjaar
1932
Geschatte waarde
€ 500.000
Oppervlakte
155 m2
Inhoud
415 m3
Aantal kamers
6 kamers
Slaapkamers
5
Badkamers
1 badkamer en 1 apart toilet
Soort bouw
Bestaande bouw
Eigendomssituatie
Volle eigendom
Ligging
Aan rustige weg, in centrum en beschutte ligging
Tuin
Achtertuin
Achtertuin
244 m² (26m diep en 9,4m breed)

Voorzieningen in de buurt

Boodschappen0,9 km
Grote supermarkt1,1 km
Cafetaria0,4 km
Restaurant0,4 km
Huisarts0,7 km
Ziekenhuis4,1 km
Kinderdagverblijf0,5 km
BSO0,4 km
Alle voorzieningen in Burgemeestersbuurt

Binnenkijken bij Burgemeester Prinslaan 28 te Ede

Meer meldingen in deze omgeving

112 melding
Donderdag 22-1-2026 om 18:53
Sijsseltselaan, 6711JE Ede

Binnenkijken bij
Dinsdag 13-1-2026
Nieuwe Kazernelaan 57, 6711JB Ede

Binnenkijken bij
Vrijdag 9-1-2026
Burgemeester Creutzlaan 17, 6711JJ Ede

112 melding
Zaterdag 3-1-2026 om 09:50
Ceelman van Ommerenweg, 6711JD Ede

112 melding
Zaterdag 3-1-2026 om 09:47
Ceelman van Ommerenweg, 6711JD Ede

112 melding
Vrijdag 2-1-2026 om 14:58
Langenberglaan, 6711HK Ede

112 melding
Vrijdag 2-1-2026 om 14:58
Langenberglaan, 6711HK Ede

Nieuw bedrijf
Januari 2026
Buurtmeesterweg 38, 6711HN Ede

Direct een e-mail ontvangen bij nieuwe meldingen in deze regio?

Meld je dan GRATIS aan voor de Oozo Alert service voor Burgemeestersbuurt

Instellen

Meer nieuws in Burgemeestersbuurt

Weten hoe eenvoudig het is om af te vallen? Zonder pillen en smeersels en zonder je in het zweet te werken!
Kijk op eenvoudig-afvallen.nl

© 2012 - 2026 OOZO.nl - info@oozo.nl - Gegevens verwijderen? | Disclaimer | Privacy statement