Woning Madoeralaan 29 Ede

Madoeralaan 29, 6714AM Ede

Ontvang updates voor De Steinen

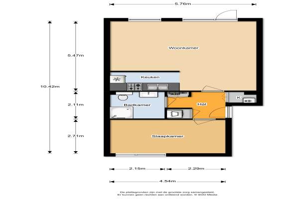
Het adres van deze woning uit 1982 is Madoeralaan 29 te Ede. Het pand heeft een oppervlakte van 55m² en heeft 2 kamers kamers waarvan 1 slaapkamers. De geschatte waarde van deze woning is € 157.500.

Bekijk alle woningen in De Steinen

Gegevens van Benedenwoning (appartement)

Bouwjaar
1982
Geschatte waarde
€ 157.500
Oppervlakte
55 m2
Inhoud
170 m3
Aantal kamers
2 kamers
Slaapkamers
1
Badkamers
1 badkamer
Soort bouw
Bestaande bouw
Eigendomssituatie
Volle eigendom
Ligging
Aan park, aan rustige weg en in woonwijk
Tuin
Achtertuin en voortuin

Voorzieningen in de buurt

Boodschappen0,5 km
Grote supermarkt0,5 km
Cafetaria0,5 km
Restaurant0,7 km
Huisarts0,7 km
Ziekenhuis2,9 km
Kinderdagverblijf0,3 km
BSO0,7 km
Alle voorzieningen in De Steinen

Binnenkijken bij Madoeralaan 29 te Ede

Meer meldingen in deze omgeving

Binnenkijken bij
Vrijdag 14-11-2025
Pollenstein 138, 6714DH Ede

Binnenkijken bij
Dinsdag 11-11-2025
Weerdestein 59, 6714CK Ede

Binnenkijken bij
Dinsdag 11-11-2025
Valkestein 1101, 6714BC Ede

Binnenkijken bij
Dinsdag 11-11-2025
Madoeralaan 27, 6714AM Ede

112 melding
Zondag 2-11-2025 om 09:12
Loevestein, Ede

Binnenkijken bij
Donderdag 30-10-2025
Rienderstein 11, 6714CB Ede

Binnenkijken bij
Woensdag 29-10-2025
Weerdestein 50, 6714CT Ede

Nieuw bedrijf
Oktober 2025
Proosdijweg 21, 6714AK Ede

Direct een e-mail ontvangen bij nieuwe meldingen in deze regio?

Meld je dan GRATIS aan voor de Oozo Alert service voor De Steinen

Instellen

Meer nieuws in De Steinen

Weten hoe eenvoudig het is om af te vallen? Zonder pillen en smeersels en zonder je in het zweet te werken!
Kijk op eenvoudig-afvallen.nl

© 2012 - 2025 OOZO.nl - info@oozo.nl - Gegevens verwijderen? | Disclaimer | Privacy statement