Woning Juliana van Stolberglaan 187 Ede

Juliana van Stolberglaan 187, 6713PH Ede

Ontvang updates voor Beatrixpark

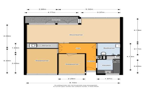
Het adres van deze woning uit 1960 is Juliana van Stolberglaan 187 te Ede. Het pand heeft een oppervlakte van 75m² en heeft 3 kamers kamers waarvan 2 slaapkamers. De geschatte waarde van deze woning is € 145.000.

Bekijk alle woningen in Beatrixpark

Gegevens van Galerijflat (appartement met open portiek)

Bouwjaar
1960
Geschatte waarde
€ 145.000
Oppervlakte
75 m2
Inhoud
200 m3
Aantal kamers
3 kamers
Slaapkamers
2
Badkamers
1 badkamer
Soort bouw
Bestaande bouw
Eigendomssituatie
Volle eigendom
Ligging
Aan rustige weg, in woonwijk en in bosrijke omgeving

Voorzieningen in de buurt

Boodschappen0,5 km
Grote supermarkt0,8 km
Cafetaria0,5 km
Restaurant0,7 km
Huisarts0,4 km
Ziekenhuis2,4 km
Kinderdagverblijf0,4 km
BSO0,4 km
Alle voorzieningen in Beatrixpark

Binnenkijken bij Juliana van Stolberglaan 187 te Ede

Meer meldingen in deze omgeving

Binnenkijken bij
Zaterdag 28-2-2026
Anna van Burenlaan 34, 6713NK Ede

Nieuw bedrijf
Februari 2026
Louise Henriëttelaan 18A, 6713MH Ede

112 melding
Donderdag 19-2-2026 om 14:11
Prins Hendriklaan, Ede

112 melding
Woensdag 11-2-2026 om 02:49
Anna van Burenlaan, Ede

112 melding
Woensdag 11-2-2026 om 02:39
Anna van Burenlaan, Ede

Binnenkijken bij
Woensdag 11-2-2026
Juliana van Stolberglaan 145, 6713PG Ede

Binnenkijken bij
Vrijdag 30-1-2026
Ernst Casimirlaan 113, 6713LV Ede

Nieuw bedrijf
Januari 2026
Ernst Casimirlaan 20, 6713LR Ede

Direct een e-mail ontvangen bij nieuwe meldingen in deze regio?

Meld je dan GRATIS aan voor de Oozo Alert service voor Beatrixpark

Instellen

Meer nieuws in Beatrixpark

Weten hoe eenvoudig het is om af te vallen? Zonder pillen en smeersels en zonder je in het zweet te werken!
Kijk op eenvoudig-afvallen.nl

© 2012 - 2026 OOZO.nl - info@oozo.nl - Gegevens verwijderen? | Disclaimer | Privacy statement