Woning Anna van Burenlaan 118 Ede

Anna van Burenlaan 118, 6713NN Ede

Ontvang updates voor Beatrixpark

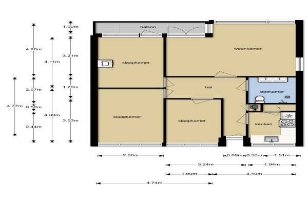
Het adres van deze woning uit 1959 is Anna van Burenlaan 118 te Ede. Het pand heeft een oppervlakte van 74m² en heeft 4 kamers kamers waarvan 3 slaapkamers. De geschatte waarde van deze woning is € 159.500.

Bekijk alle woningen in Beatrixpark

Gegevens van Galerijflat (appartement)

Bouwjaar
1959
Geschatte waarde
€ 159.500
Oppervlakte
74 m2
Inhoud
242 m3
Aantal kamers
4 kamers
Slaapkamers
3
Badkamers
1 badkamer en 1 apart toilet
Soort bouw
Bestaande bouw
Eigendomssituatie
Volle eigendom
Ligging
Aan rustige weg, in woonwijk en in bosrijke omgeving

Voorzieningen in de buurt

Boodschappen0,5 km
Grote supermarkt0,8 km
Cafetaria0,5 km
Restaurant0,7 km
Huisarts0,4 km
Ziekenhuis2,4 km
Kinderdagverblijf0,4 km
BSO0,4 km
Alle voorzieningen in Beatrixpark

Binnenkijken bij Anna van Burenlaan 118 te Ede

Meer meldingen in deze omgeving

Binnenkijken bij
Woensdag 18-3-2026
Ernst Casimirlaan 106, 6713LV Ede

Binnenkijken bij
Zondag 15-3-2026
Amalia van Solmslaan 3, 6713ME Ede

Binnenkijken bij
Zaterdag 28-2-2026
Anna van Burenlaan 34, 6713NK Ede

Nieuw bedrijf
Februari 2026
Louise Henriëttelaan 18A, 6713MH Ede

112 melding
Donderdag 19-2-2026 om 14:11
Prins Hendriklaan, Ede

112 melding
Woensdag 11-2-2026 om 02:49
Anna van Burenlaan, Ede

112 melding
Woensdag 11-2-2026 om 02:39
Anna van Burenlaan, Ede

Binnenkijken bij
Woensdag 11-2-2026
Juliana van Stolberglaan 145, 6713PG Ede

Direct een e-mail ontvangen bij nieuwe meldingen in deze regio?

Meld je dan GRATIS aan voor de Oozo Alert service voor Beatrixpark

Instellen

Meer nieuws in Beatrixpark

Weten hoe eenvoudig het is om af te vallen? Zonder pillen en smeersels en zonder je in het zweet te werken!
Kijk op eenvoudig-afvallen.nl

© 2012 - 2026 OOZO.nl - info@oozo.nl - Gegevens verwijderen? | Disclaimer | Privacy statement