Woning Jan van Goyenstraat 23 Ede

Jan van Goyenstraat 23, 6717GT Ede

Ontvang updates voor Hoogbouw-Zuid

Het adres van deze woning uit 1957 is Jan van Goyenstraat 23 te Ede. Het pand heeft 5 kamers kamers waarvan 4 slaapkamers. De geschatte waarde van deze woning is € 269.500.

Bekijk alle woningen in Hoogbouw-Zuid

Gegevens van Eengezinswoning, hoekwoning

Bouwjaar
1957
Geschatte waarde
€ 269.500
Oppervlakte
0 m2
Inhoud
412 m3
Aantal kamers
5 kamers
Slaapkamers
4
Badkamers
1 badkamer en 1 apart toilet
Soort bouw
Bestaande bouw
Eigendomssituatie
Volle eigendom
Ligging
Aan rustige weg en in woonwijk
Tuin
Achtertuin en voortuin
Achtertuin
90 m² (15m diep en 6m breed)

Voorzieningen in de buurt

Boodschappen0,6 km
Grote supermarkt0,7 km
Cafetaria0,4 km
Restaurant0,9 km
Huisarts0,4 km
Ziekenhuis1,1 km
Kinderdagverblijf0,4 km
BSO0,4 km
Alle voorzieningen in Hoogbouw-Zuid

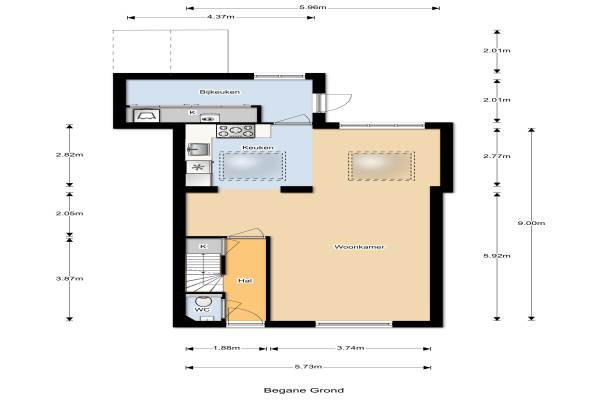
Binnenkijken bij Jan van Goyenstraat 23 te Ede

Meer meldingen in deze omgeving

Binnenkijken bij
Donderdag 5-2-2026
Van der Hagenstraat 529, 6717DP Ede

Nieuw bedrijf
Februari 2026
Nieuwe Maanderbuurtweg 410, 6717AW Ede

Binnenkijken bij
Zondag 1-2-2026
Van der Hagenstraat 843, 6717DR Ede

Faillissement
Woensdag 14-1-2026
Nieuwe Maanderbuurtweg 136, 6717BA Ede

112 melding
Donderdag 1-1-2026 om 20:08
Van der Hagenstraat, Ede

Nieuw bedrijf
Januari 2026
Nieuwe Maanderbuurtweg 546, 6717BC Ede

Nieuw bedrijf
Januari 2026
Willem Marislaan 105, 6717HB Ede

Nieuw bedrijf
Januari 2026
Willem Marislaan 611, 6717HC Ede

Direct een e-mail ontvangen bij nieuwe meldingen in deze regio?

Meld je dan GRATIS aan voor de Oozo Alert service voor Hoogbouw-Zuid

Instellen

Meer nieuws in Hoogbouw-Zuid

Weten hoe eenvoudig het is om af te vallen? Zonder pillen en smeersels en zonder je in het zweet te werken!
Kijk op eenvoudig-afvallen.nl

© 2012 - 2026 OOZO.nl - info@oozo.nl - Gegevens verwijderen? | Disclaimer | Privacy statement