Woning Leeghwaterstraat 46 Ede

Leeghwaterstraat 46, 6717CW Ede

Ontvang updates voor Uitvindersbuurt

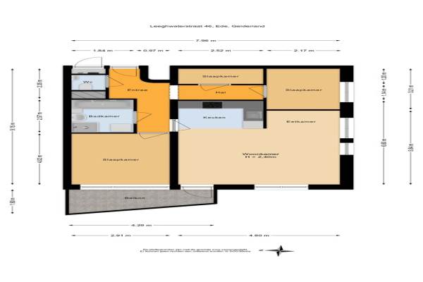
Het adres van deze woning uit 1997 is Leeghwaterstraat 46 te Ede. Het pand heeft een oppervlakte van 72m² en heeft 3 kamers kamers waarvan 2 slaapkamers. De geschatte waarde van deze woning is € 225.000.

Bekijk alle woningen in Uitvindersbuurt

Gegevens van Appartement

Bouwjaar
1997
Geschatte waarde
€ 225.000
Oppervlakte
72 m2
Inhoud
240 m3
Aantal kamers
3 kamers
Slaapkamers
2
Badkamers
1 apart toilet
Soort bouw
Bestaande bouw
Eigendomssituatie
Volle eigendom
Ligging
Aan rustige weg, in woonwijk en vrij uitzicht
Tuin
Balkon aanwezig

Voorzieningen in de buurt

Boodschappen0,3 km
Grote supermarkt0,5 km
Cafetaria0,4 km
Restaurant0,8 km
Huisarts0,3 km
Ziekenhuis1,3 km
Kinderdagverblijf0,3 km
BSO0,3 km
Alle voorzieningen in Uitvindersbuurt

Binnenkijken bij Leeghwaterstraat 46 te Ede

Meer meldingen in deze omgeving

Binnenkijken bij
Dinsdag 31-3-2026
Verlengde Blokkenweg 5, 6717AD Ede

Nieuw bedrijf
Maart 2026
Verlengde Parkweg 20, 6717GN Ede

Nieuw bedrijf
Maart 2026
Doornlaan 3, 6717BN Ede

Nieuw bedrijf
Maart 2026
Verlengde Parkweg 42, 6717GP Ede

112 melding
Vrijdag 20-3-2026 om 13:59
Huygensstraat, Ede

112 melding
Vrijdag 20-3-2026 om 13:59
Huygensstraat, Ede

Binnenkijken bij
Donderdag 12-3-2026
Nobelstraat 1, 6717CG Ede

112 melding
Woensdag 11-3-2026 om 17:17
Verlengde Blokkenweg, 6717AD Ede

Direct een e-mail ontvangen bij nieuwe meldingen in deze regio?

Meld je dan GRATIS aan voor de Oozo Alert service voor Uitvindersbuurt

Instellen

Meer nieuws in Uitvindersbuurt

Weten hoe eenvoudig het is om af te vallen? Zonder pillen en smeersels en zonder je in het zweet te werken!
Kijk op eenvoudig-afvallen.nl

© 2012 - 2026 OOZO.nl - info@oozo.nl - Gegevens verwijderen? | Disclaimer | Privacy statement