Woning Leeghwaterstraat 106 Ede

Leeghwaterstraat 106, 6717CW Ede

Ontvang updates voor Uitvindersbuurt

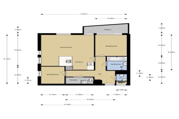
Het adres van deze woning uit 1996 is Leeghwaterstraat 106 te Ede. Het pand heeft een oppervlakte van 73m² en heeft 3 kamers kamers waarvan 2 slaapkamers. De geschatte waarde van deze woning is € 175.000.

Bekijk alle woningen in Uitvindersbuurt

Gegevens van Portiekflat (appartement)

Bouwjaar
1996
Geschatte waarde
€ 175.000
Oppervlakte
73 m2
Inhoud
232 m3
Aantal kamers
3 kamers
Slaapkamers
2
Badkamers
1 badkamer en 1 apart toilet
Soort bouw
Bestaande bouw
Eigendomssituatie
Volle eigendom
Ligging
Vrij uitzicht

Voorzieningen in de buurt

Boodschappen0,3 km
Grote supermarkt0,5 km
Cafetaria0,4 km
Restaurant0,8 km
Huisarts0,3 km
Ziekenhuis1,3 km
Kinderdagverblijf0,3 km
BSO0,3 km
Alle voorzieningen in Uitvindersbuurt

Binnenkijken bij Leeghwaterstraat 106 te Ede

Meer meldingen in deze omgeving

Binnenkijken bij
Dinsdag 31-3-2026
Verlengde Blokkenweg 5, 6717AD Ede

Nieuw bedrijf
Maart 2026
Verlengde Parkweg 20, 6717GN Ede

Nieuw bedrijf
Maart 2026
Doornlaan 3, 6717BN Ede

Nieuw bedrijf
Maart 2026
Verlengde Parkweg 42, 6717GP Ede

112 melding
Vrijdag 20-3-2026 om 13:59
Huygensstraat, Ede

112 melding
Vrijdag 20-3-2026 om 13:59
Huygensstraat, Ede

Binnenkijken bij
Donderdag 12-3-2026
Nobelstraat 1, 6717CG Ede

112 melding
Woensdag 11-3-2026 om 17:17
Verlengde Blokkenweg, 6717AD Ede

Direct een e-mail ontvangen bij nieuwe meldingen in deze regio?

Meld je dan GRATIS aan voor de Oozo Alert service voor Uitvindersbuurt

Instellen

Meer nieuws in Uitvindersbuurt

Weten hoe eenvoudig het is om af te vallen? Zonder pillen en smeersels en zonder je in het zweet te werken!
Kijk op eenvoudig-afvallen.nl

© 2012 - 2026 OOZO.nl - info@oozo.nl - Gegevens verwijderen? | Disclaimer | Privacy statement