Woning Strandeilandlaan 53 AMSTERDAM

Strandeilandlaan 53, 6741AC AMSTERDAM

Ontvang updates voor Centrum Lunteren

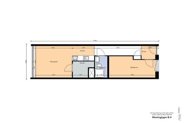
Het adres van deze woning uit 2022 is Strandeilandlaan 53 te AMSTERDAM. Het pand heeft 0 kamers kamers waarvan 1 slaapkamers.

Bekijk alle woningen in Centrum Lunteren

Gegevens van Studio

Bouwjaar
2022
Geschatte waarde
€ 0
Oppervlakte
0 m2
Aantal kamers
0 kamers
Slaapkamers
1
Tuin
Balkon aanwezig

Voorzieningen in de buurt

Boodschappen0,5 km
Grote supermarkt0,5 km
Cafetaria0,6 km
Restaurant0,6 km
Huisarts0,6 km
Ziekenhuis6,7 km
Kinderdagverblijf0,6 km
BSO0,5 km
Alle voorzieningen in Centrum Lunteren

Binnenkijken bij Strandeilandlaan 53 te AMSTERDAM

Meer meldingen in deze omgeving

Binnenkijken bij
Vrijdag 27-3-2026
De Bron 8, 6741VA Lunteren

Nieuw bedrijf
Maart 2026
De Haverkamp 28, 6741PM Lunteren

Nieuw bedrijf
Maart 2026
Klomperweg 6, 6741BL Lunteren

Binnenkijken bij
Donderdag 26-3-2026
Postweg 11C, 6741BA Lunteren

Binnenkijken bij
Donderdag 26-3-2026
Dorpsstraat 17D, 6741AA Lunteren

Binnenkijken bij
Donderdag 26-3-2026
Hulweg 39C, 6741CE Lunteren

Binnenkijken bij
Woensdag 25-3-2026
Dorpsstraat 131C, 6741AE Lunteren

Binnenkijken bij
Donderdag 19-3-2026
Egelhof 21, 6741VB Lunteren

Direct een e-mail ontvangen bij nieuwe meldingen in deze regio?

Meld je dan GRATIS aan voor de Oozo Alert service voor Centrum Lunteren

Instellen

Meer nieuws in Centrum Lunteren

Weten hoe eenvoudig het is om af te vallen? Zonder pillen en smeersels en zonder je in het zweet te werken!
Kijk op eenvoudig-afvallen.nl

© 2012 - 2026 OOZO.nl - info@oozo.nl - Gegevens verwijderen? | Disclaimer | Privacy statement