Woning Oostervalge 42 Warffum

Oostervalge 42, 9989EK Warffum

Ontvang updates voor Verspreide huizen Warffum

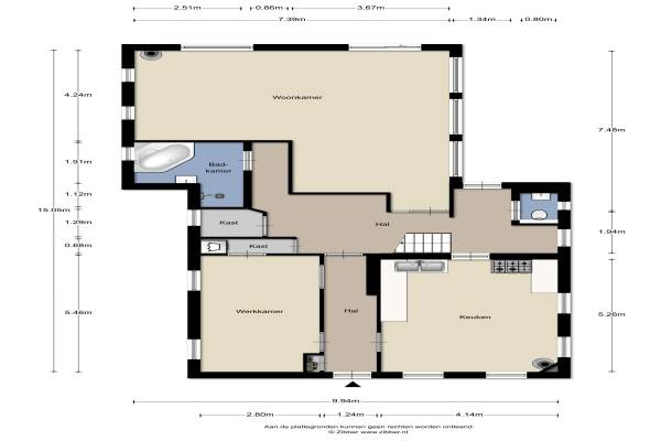
Het adres van deze woning uit 1923 is Oostervalge 42 te Warffum. Het pand heeft een oppervlakte van 191m² en een perceeloppervlakte van 1215m² en heeft 5 kamers kamers waarvan 4 slaapkamers. De geschatte waarde van deze woning is € 235.000.

Bekijk alle woningen in Verspreide huizen Warffum

Gegevens van Eengezinswoning, vrijstaande woning

Bouwjaar
1923
Geschatte waarde
€ 235.000
Oppervlakte
191 m2
Inhoud
723 m3
Aantal kamers
5 kamers
Slaapkamers
4
Badkamers
2 aparte toiletten
Soort bouw
Bestaande bouw
Eigendomssituatie
Volle eigendom
Ligging
Aan drukke weg, vrij uitzicht en landelijk gelegen
Tuin
Achtertuin, voortuin, zijtuin en zonneterras

Voorzieningen in de buurt

Binnenkijken bij Oostervalge 42 te Warffum

Meer meldingen in deze omgeving

Binnenkijken bij
Zondag 10-5-2026
Breede 6, 9989TA Warffum

Nieuw bedrijf
April 2026
Breede 17, 9989TA Warffum

112 melding
Maandag 30-3-2026 om 16:44
Onderdendamsterweg, 9989TG Warffum

Binnenkijken bij
Woensdag 21-1-2026
Breede 13, 9989TA Warffum

112 melding
Vrijdag 9-1-2026 om 20:02
Onderdendamsterweg, 9989TG Warffum

112 melding
Woensdag 31-12-2025 om 04:51
Onderdendamsterweg, 9989TG Warffum

112 melding
Woensdag 31-12-2025 om 04:51
Onderdendamsterweg, 9989TG Warffum

112 melding
Zaterdag 27-12-2025 om 20:30
Noordpolderweg, 9989TD Warffum

Direct een e-mail ontvangen bij nieuwe meldingen in deze regio?

Meld je dan GRATIS aan voor de Oozo Alert service voor Verspreide huizen Warffum

Instellen

Meer nieuws in Verspreide huizen Warffum

Weten hoe eenvoudig het is om af te vallen? Zonder pillen en smeersels en zonder je in het zweet te werken!
Kijk op eenvoudig-afvallen.nl

© 2012 - 2026 OOZO.nl - info@oozo.nl - Gegevens verwijderen? | Disclaimer | Privacy statement