Woning Moormanlaan 9 Knegsel

Moormanlaan 9, 5511PL Knegsel

Ontvang updates voor Knegsel-Oeyenbos

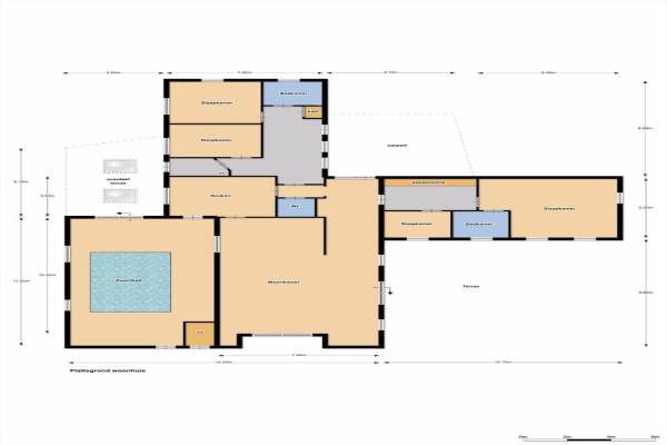
Het adres van deze woning uit 1961 is Moormanlaan 9 te Knegsel. Het pand heeft een oppervlakte van 305m² en een perceeloppervlakte van 3390m² en heeft 6 kamers kamers waarvan 4 slaapkamers. De geschatte waarde van deze woning is € 550.000.

Bekijk alle woningen in Knegsel-Oeyenbos

Gegevens van Bungalow, vrijstaande woning

Bouwjaar
1961
Geschatte waarde
€ 550.000
Oppervlakte
305 m2
Inhoud
1095 m3
Aantal kamers
6 kamers
Slaapkamers
4
Badkamers
2 badkamers en 1 apart toilet
Soort bouw
Bestaande bouw
Eigendomssituatie
Volle eigendom
Ligging
Aan bosrand, aan rustige weg, beschutte ligging en in bosrijke omgeving
Tuin
Tuin rondom

Voorzieningen in de buurt

Boodschappen2,8 km
Grote supermarkt3,3 km
Cafetaria1,7 km
Restaurant1,9 km
Huisarts2,8 km
Ziekenhuis5,1 km
Kinderdagverblijf1,6 km
BSO1,5 km
Alle voorzieningen in Knegsel-Oeyenbos

Binnenkijken bij Moormanlaan 9 te Knegsel

Meer meldingen in deze omgeving

112 melding
Maandag 10-11-2025 om 16:46
Veldhovenseweg, 5511KJ Knegsel

Nieuw bedrijf
Juli 2025
Moormanlaan 5, 5511PL Knegsel

Binnenkijken bij
Donderdag 12-6-2025
Oeyenbos 16, 5511PB Knegsel

112 melding
Donderdag 29-5-2025 om 07:01
Veldhovenseweg, 5511KJ Knegsel

112 melding
Woensdag 28-5-2025 om 22:15
Veldhovenseweg, 5511KJ Knegsel

112 melding
Woensdag 28-5-2025 om 22:02
Veldhovenseweg, 5511KJ Knegsel

112 melding
Woensdag 28-5-2025 om 21:52
Veldhovenseweg, 5511KJ Knegsel

112 melding
Woensdag 28-5-2025 om 21:39
Veldhovenseweg, 5511KJ Knegsel

Direct een e-mail ontvangen bij nieuwe meldingen in deze regio?

Meld je dan GRATIS aan voor de Oozo Alert service voor Knegsel-Oeyenbos

Instellen

Meer nieuws in Knegsel-Oeyenbos

Weten hoe eenvoudig het is om af te vallen? Zonder pillen en smeersels en zonder je in het zweet te werken!
Kijk op eenvoudig-afvallen.nl

© 2012 - 2025 OOZO.nl - info@oozo.nl - Gegevens verwijderen? | Disclaimer | Privacy statement