Woning Kerkdijk 2 Knegsel

Kerkdijk 2, 5511KZ Knegsel

Ontvang updates voor Verspreide huizen Knegsel

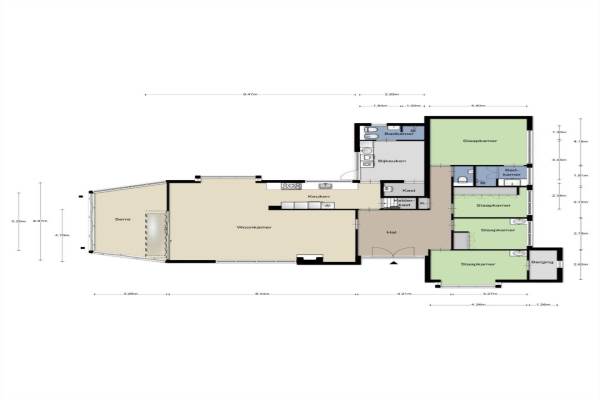
Het adres van deze woning uit 1962 is Kerkdijk 2 te Knegsel. Het pand heeft een oppervlakte van 187m² en een perceeloppervlakte van 2079m² en heeft 5 kamers kamers waarvan 4 slaapkamers. De geschatte waarde van deze woning is € 598.000.

Bekijk alle woningen in Verspreide huizen Knegsel

Gegevens van Bungalow, vrijstaande woning

Bouwjaar
1962
Geschatte waarde
€ 598.000
Oppervlakte
187 m2
Inhoud
678 m3
Aantal kamers
5 kamers
Slaapkamers
4
Soort bouw
Bestaande bouw
Ligging
Aan rustige weg, buiten bebouwde kom en in bosrijke omgeving
Tuin
Tuin rondom

Voorzieningen in de buurt

Boodschappen3,9 km
Grote supermarkt4,1 km
Cafetaria1,5 km
Restaurant1,4 km
Huisarts3,7 km
Ziekenhuis7,2 km
Kinderdagverblijf1,2 km
BSO1,2 km
Alle voorzieningen in Verspreide huizen Knegsel

Binnenkijken bij Kerkdijk 2 te Knegsel

Meer meldingen in deze omgeving

Nieuw bedrijf
November 2025
Kerkdijk 1, 5511KZ Knegsel

Nieuw bedrijf
November 2025
Eerselseweg 3, 5511KL Knegsel

112 melding
Maandag 10-11-2025 om 15:07
Eerselseweg, Knegsel

112 melding
Dinsdag 4-11-2025 om 10:34
Vessemseweg, 5511KA Knegsel

Nieuw bedrijf
Oktober 2025
Eerselseweg 3, 5511KL Knegsel

Nieuw bedrijf
Oktober 2025
Eerselseweg 15a, 5511KL Knegsel

Binnenkijken bij
Maandag 22-9-2025
Eerselseweg 9, 5511KL Knegsel

Nieuw bedrijf
September 2025
Eerselseweg 17, 5511KL Knegsel

Direct een e-mail ontvangen bij nieuwe meldingen in deze regio?

Meld je dan GRATIS aan voor de Oozo Alert service voor Verspreide huizen Knegsel

Instellen

Meer nieuws in Verspreide huizen Knegsel

Weten hoe eenvoudig het is om af te vallen? Zonder pillen en smeersels en zonder je in het zweet te werken!
Kijk op eenvoudig-afvallen.nl

© 2012 - 2025 OOZO.nl - info@oozo.nl - Gegevens verwijderen? | Disclaimer | Privacy statement