Woning Putterstraat 57 Vessem

Putterstraat 57, 5512BL Vessem

Ontvang updates voor Vessem-kom

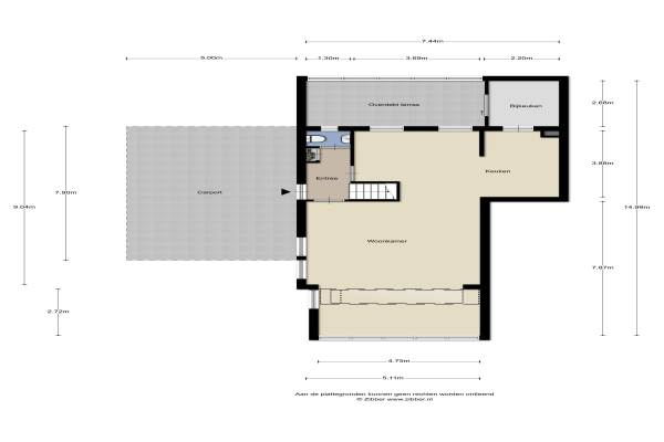
Het adres van deze woning uit 1980 is Putterstraat 57 te Vessem. Het pand heeft een oppervlakte van 120m² en een perceeloppervlakte van 293m² en heeft 5 kamers kamers waarvan 3 slaapkamers. De geschatte waarde van deze woning is € 325.000.

Bekijk alle woningen in Vessem-kom

Gegevens van Eengezinswoning, 2-onder-1-kapwoning

Bouwjaar
1980
Geschatte waarde
€ 325.000
Oppervlakte
120 m2
Inhoud
415 m3
Aantal kamers
5 kamers
Slaapkamers
3
Badkamers
1 badkamer en 1 apart toilet
Soort bouw
Bestaande bouw
Eigendomssituatie
Volle eigendom
Ligging
Aan rustige weg en in woonwijk
Tuin
Achtertuin en voortuin
Achtertuin
96 m² (8m diep en 12m breed)

Voorzieningen in de buurt

Boodschappen0,5 km
Grote supermarkt0,5 km
Cafetaria0,5 km
Restaurant0,5 km
Huisarts0,6 km
Ziekenhuis11,1 km
Kinderdagverblijf0,6 km
BSO0,6 km
Alle voorzieningen in Vessem-kom

Binnenkijken bij Putterstraat 57 te Vessem

Meer meldingen in deze omgeving

Nieuw bedrijf
Oktober 2025
Molenberg 22, 5512BE Vessem

112 melding
Maandag 6-10-2025 om 14:03
Flinkert, Vessem

112 melding
Donderdag 25-9-2025 om 12:23
Den Hofpad, 5512AC Vessem

112 melding
Donderdag 25-9-2025 om 11:45
Den Hofpad, 5512AC Vessem

112 melding
Dinsdag 23-9-2025 om 18:34
Jan Smuldersstraat, 5512AZ Vessem

Binnenkijken bij
Vrijdag 19-9-2025
Postels Huufke 16, 5512AV Vessem

Binnenkijken bij
Vrijdag 19-9-2025
Domineeshof 10, 5512BR Vessem

112 melding
Zondag 14-9-2025 om 04:19
Jan Smuldersstraat, Vessem

Direct een e-mail ontvangen bij nieuwe meldingen in deze regio?

Meld je dan GRATIS aan voor de Oozo Alert service voor Vessem-kom

Instellen

Meer nieuws in Vessem-kom

Weten hoe eenvoudig het is om af te vallen? Zonder pillen en smeersels en zonder je in het zweet te werken!
Kijk op eenvoudig-afvallen.nl

© 2012 - 2025 OOZO.nl - info@oozo.nl - Gegevens verwijderen? | Disclaimer | Privacy statement