Woning Bergenhuizen 19 Noorbeek

Bergenhuizen 19, 6255NJ Noorbeek

Ontvang updates voor Bergenhuizen en Schey

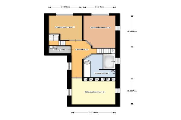
Het adres van deze woning uit 1890 is Bergenhuizen 19 te Noorbeek. Het pand heeft een oppervlakte van 98m² en een perceeloppervlakte van 259m² en heeft 7 kamers kamers waarvan 3 slaapkamers. De geschatte waarde van deze woning is € 229.000.

Bekijk alle woningen in Bergenhuizen en Schey

Gegevens van Eengezinswoning, hoekwoning

Bouwjaar
1890
Geschatte waarde
€ 229.000
Oppervlakte
98 m2
Inhoud
310 m3
Aantal kamers
7 kamers
Slaapkamers
3
Badkamers
1 badkamer en 1 apart toilet
Soort bouw
Bestaande bouw
Eigendomssituatie
Volle eigendom
Ligging
Aan rustige weg, in woonwijk en vrij uitzicht
Tuin
Achtertuin
Achtertuin
156 m² (13m diep en 12m breed)

Voorzieningen in de buurt

Boodschappen1,0 km
Grote supermarkt2,9 km
Cafetaria1,2 km
Restaurant1,0 km
Huisarts2,7 km
Ziekenhuis11,9 km
Kinderdagverblijf3,0 km
BSO3,0 km
Alle voorzieningen in Bergenhuizen en Schey

Binnenkijken bij Bergenhuizen 19 te Noorbeek

Meer meldingen in deze omgeving

112 melding
Zondag 4-5-2025 om 16:58
Hoogcruts, 6255NS Noorbeek

112 melding
Zondag 4-5-2025 om 16:56
Hoogcruts, 6255NS Noorbeek

Nieuw bedrijf
Maart 2025
Bergenhuizen 12, 6255NK Noorbeek

Nieuw bedrijf
Maart 2025
Bergenhuizen 12, 6255NK Noorbeek

Nieuw bedrijf
Maart 2025
Bergenhuizen 23D, 6255NJ Noorbeek

Nieuw bedrijf
Maart 2025
Bergenhuizen 29, 6255NJ NOORBEEK

Nieuw bedrijf
Maart 2025
Hoogcruts 14B, 6255NS Noorbeek

Nieuw bedrijf
Maart 2025
Bergenhuizen 16, 6255NK NOORBEEK

Direct een e-mail ontvangen bij nieuwe meldingen in deze regio?

Meld je dan GRATIS aan voor de Oozo Alert service voor Bergenhuizen en Schey

Instellen

Meer nieuws in Bergenhuizen en Schey

Weten hoe eenvoudig het is om af te vallen? Zonder pillen en smeersels en zonder je in het zweet te werken!
Kijk op eenvoudig-afvallen.nl

© 2012 - 2026 OOZO.nl - info@oozo.nl - Gegevens verwijderen? | Disclaimer | Privacy statement