Woning Julianastraat 6a Eindhoven

Julianastraat 6a, 5611HT Eindhoven

Ontvang updates voor Bergen

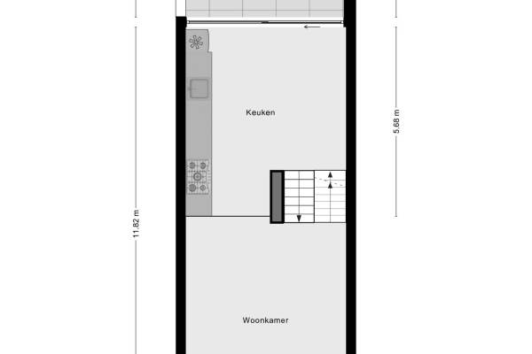
Het adres van deze woning uit 2002 is Julianastraat 6a te Eindhoven. Het pand heeft een oppervlakte van 174m² en heeft 5 kamers kamers waarvan 4 slaapkamers. De geschatte waarde van deze woning is € 850.000.

Bekijk alle woningen in Bergen

Gegevens van Beneden + bovenwoning

Bouwjaar
2002
Geschatte waarde
€ 850.000
Oppervlakte
174 m2
Inhoud
624 m3
Aantal kamers
5 kamers
Slaapkamers
4
Badkamers
2 badkamers en 1 apart toilet
Soort bouw
Bestaande bouw
Eigendomssituatie
Volle eigendom

Voorzieningen in de buurt

Binnenkijken bij Julianastraat 6a te Eindhoven

Meer meldingen in deze omgeving

112 melding
Zaterdag 14-2-2026 om 23:54
Paradijslaan, Eindhoven

112 melding
Woensdag 11-2-2026 om 18:08
Stresemann-Nes & Spaak-Nes, 1862 Bergen

112 melding
Woensdag 11-2-2026 om 18:08
Stresemann-Nes & Spaak-Nes, 1862 Bergen

Faillissement
Dinsdag 10-2-2026
Paradijslaan 5, 5611KM Eindhoven

112 melding
Vrijdag 6-2-2026 om 09:25
Sparrenlaan & Vinkenbaan, 1861 Bergen

Nieuw bedrijf
Februari 2026
Kleine Berg 41, 5611JS Eindhoven

Nieuw bedrijf
Februari 2026
Deken van Somerenstraat 340, 5611KX Eindhoven

Nieuw bedrijf
Februari 2026
Willem de Zwijgerstraat 22A, 5611JL Eindhoven

Direct een e-mail ontvangen bij nieuwe meldingen in deze regio?

Meld je dan GRATIS aan voor de Oozo Alert service voor Bergen

Instellen

Meer nieuws in Bergen

Weten hoe eenvoudig het is om af te vallen? Zonder pillen en smeersels en zonder je in het zweet te werken!
Kijk op eenvoudig-afvallen.nl

© 2012 - 2026 OOZO.nl - info@oozo.nl - Gegevens verwijderen? | Disclaimer | Privacy statement