Woning Lemmenslaan 30 Eindhoven

Lemmenslaan 30, 5654JM Eindhoven

Ontvang updates voor Bennekel-West, Gagelbosch

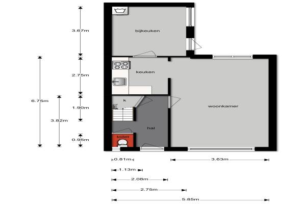
Het adres van deze woning uit 1950 is Lemmenslaan 30 te Eindhoven. Het pand heeft een oppervlakte van 85m² en een perceeloppervlakte van 172m² en heeft 4 kamers kamers waarvan 3 slaapkamers. De geschatte waarde van deze woning is € 200.000.

Bekijk alle woningen in Bennekel-West, Gagelbosch

Gegevens van Eengezinswoning, tussenwoning

Bouwjaar
1950
Geschatte waarde
€ 200.000
Oppervlakte
85 m2
Inhoud
322 m3
Aantal kamers
4 kamers
Slaapkamers
3
Badkamers
1 badkamer en 1 apart toilet
Soort bouw
Bestaande bouw
Eigendomssituatie
Volle eigendom
Ligging
Aan rustige weg en in woonwijk
Tuin
Achtertuin en voortuin
Achtertuin
90 m² (15m diep en 6m breed)

Voorzieningen in de buurt

Binnenkijken bij Lemmenslaan 30 te Eindhoven

Meer meldingen in deze omgeving

Binnenkijken bij
Donderdag 5-2-2026
Blaarthemseweg 103, 5654NS Eindhoven

Binnenkijken bij
Vrijdag 30-1-2026
Locatellistraat 4, 5654JE Eindhoven

112 melding
Donderdag 29-1-2026 om 07:17
Lemmenslaan, Eindhoven

Nieuw bedrijf
Januari 2026
Mozartlaan 66, 5654EJ Eindhoven

Nieuw bedrijf
Januari 2026
Locatellistraat 48, 5654JE Eindhoven

Nieuw bedrijf
Januari 2026
Verdistraat 29, 5654DM Eindhoven

Binnenkijken bij
Vrijdag 16-1-2026
Cornelis Dopperstraat 26, 5654JH Eindhoven

112 melding
Maandag 12-1-2026 om 17:55
Gagelboschplein, Eindhoven

Direct een e-mail ontvangen bij nieuwe meldingen in deze regio?

Meld je dan GRATIS aan voor de Oozo Alert service voor Bennekel-West, Gagelbosch

Instellen

Meer nieuws in Bennekel-West, Gagelbosch

Weten hoe eenvoudig het is om af te vallen? Zonder pillen en smeersels en zonder je in het zweet te werken!
Kijk op eenvoudig-afvallen.nl

© 2012 - 2026 OOZO.nl - info@oozo.nl - Gegevens verwijderen? | Disclaimer | Privacy statement