Woning Limburglaan 137 Eindhoven

Limburglaan 137, 5616ET Eindhoven

Ontvang updates voor Hagenkamp

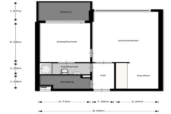
Het adres van deze woning uit 1972 is Limburglaan 137 te Eindhoven. Het pand heeft een oppervlakte van 52m² en heeft 2 kamers kamers waarvan 1 slaapkamers. De geschatte waarde van deze woning is € 159.500.

Bekijk alle woningen in Hagenkamp

Gegevens van Portiekflat (appartement)

Bouwjaar
1972
Geschatte waarde
€ 159.500
Oppervlakte
52 m2
Inhoud
160 m3
Aantal kamers
2 kamers
Slaapkamers
1
Badkamers
1 badkamer
Soort bouw
Bestaande bouw
Eigendomssituatie
Volle eigendom
Ligging
Aan water, aan park, aan rustige weg en vrij uitzicht

Voorzieningen in de buurt

Binnenkijken bij Limburglaan 137 te Eindhoven

Meer meldingen in deze omgeving

112 melding
Woensdag 29-10-2025 om 13:29
Maria van Bourgondiëlaan, Eindhoven

Binnenkijken bij
Donderdag 16-10-2025
Limburglaan 153, 5616EV Eindhoven

Nieuw bedrijf
Oktober 2025
Karel de Stoutestraat 2, 5616CS Eindhoven

112 melding
Dinsdag 14-10-2025 om 22:22
Maria van Bourgondiëlaan, Eindhoven

112 melding
Dinsdag 14-10-2025 om 22:20
Maria van Bourgondiëlaan, 5616EE Eindhoven

112 melding
Dinsdag 14-10-2025 om 22:14
Maria van Bourgondiëlaan, 5616EE Eindhoven

112 melding
Dinsdag 14-10-2025 om 22:14
Maria van Bourgondiëlaan, 5616EE Eindhoven

Nieuw bedrijf
Oktober 2025
Limburglaan 83, 5616ES Eindhoven

Direct een e-mail ontvangen bij nieuwe meldingen in deze regio?

Meld je dan GRATIS aan voor de Oozo Alert service voor Hagenkamp

Instellen

Meer nieuws in Hagenkamp

Weten hoe eenvoudig het is om af te vallen? Zonder pillen en smeersels en zonder je in het zweet te werken!
Kijk op eenvoudig-afvallen.nl

© 2012 - 2025 OOZO.nl - info@oozo.nl - Gegevens verwijderen? | Disclaimer | Privacy statement