Woning August Sniederslaan 14 Eindhoven

August Sniederslaan 14, 5615GE Eindhoven

Ontvang updates voor Schrijversbuurt

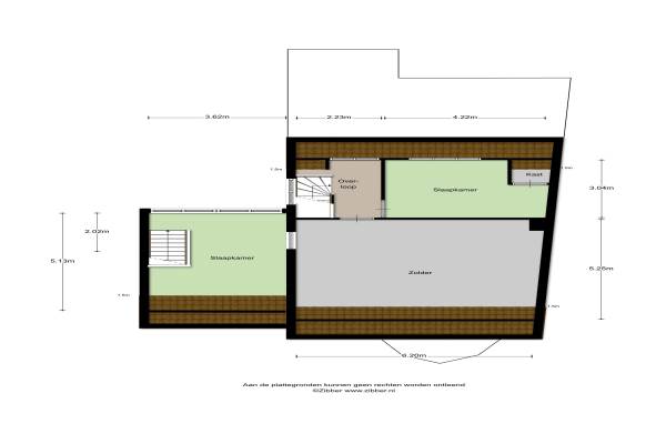
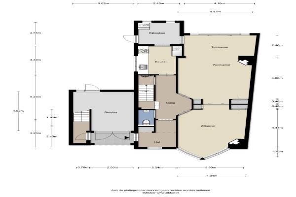
Het adres van deze woning uit 1932 is August Sniederslaan 14 te Eindhoven. Het pand heeft een oppervlakte van 253m² en een perceeloppervlakte van 351m² en heeft 10 kamers kamers waarvan 6 slaapkamers. De geschatte waarde van deze woning is € 829.000.

Bekijk alle woningen in Schrijversbuurt

Gegevens van Herenhuis, tussenwoning

Bouwjaar
1932
Geschatte waarde
€ 829.000
Oppervlakte
253 m2
Inhoud
1014 m3
Aantal kamers
10 kamers
Slaapkamers
6
Badkamers
1 badkamer en 2 aparte toiletten
Soort bouw
Bestaande bouw
Eigendomssituatie
Volle eigendom
Ligging
Aan park, in centrum en vrij uitzicht
Tuin
Achtertuin en voortuin
Achtertuin
M² (0,15m diep en 0,11m breed)

Voorzieningen in de buurt

Binnenkijken bij August Sniederslaan 14 te Eindhoven

Meer meldingen in deze omgeving

Binnenkijken bij
Donderdag 9-10-2025
Jacob van Maerlantlaan 4, 5615JT Eindhoven

Nieuw bedrijf
Oktober 2025
Scheidingstraat 62, 5615KN Eindhoven

112 melding
Maandag 6-10-2025 om 08:25
Camphuysenstraat, 5615KS Eindhoven

Faillissement
Vrijdag 3-10-2025
Helmerslaan 78, 5615JG Eindhoven

Faillissement
Vrijdag 3-10-2025
Helmerslaan 78, 5615JG Eindhoven

Binnenkijken bij
Maandag 22-9-2025
Edenstraat 104, 5615GB Eindhoven

Binnenkijken bij
Maandag 22-9-2025
Hoogstraat 189, 5615PD Eindhoven

Binnenkijken bij
Vrijdag 19-9-2025
Akkerstraat 29, 5615HP Eindhoven

Direct een e-mail ontvangen bij nieuwe meldingen in deze regio?

Meld je dan GRATIS aan voor de Oozo Alert service voor Schrijversbuurt

Instellen

Meer nieuws in Schrijversbuurt

Weten hoe eenvoudig het is om af te vallen? Zonder pillen en smeersels en zonder je in het zweet te werken!
Kijk op eenvoudig-afvallen.nl

© 2012 - 2025 OOZO.nl - info@oozo.nl - Gegevens verwijderen? | Disclaimer | Privacy statement