Woning Floralaan West 149 Eindhoven

Floralaan West 149, 5644BH Eindhoven

Ontvang updates voor Eikenburg

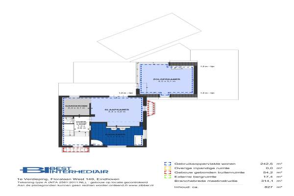
Het adres van deze woning uit 1953 is Floralaan West 149 te Eindhoven. Het pand heeft een oppervlakte van 243m² en een perceeloppervlakte van 580m² en heeft 5 kamers kamers waarvan 3 slaapkamers. De geschatte waarde van deze woning is € 695.000.

Bekijk alle woningen in Eikenburg

Gegevens van Eengezinswoning, halfvrijstaande woning

Bouwjaar
1953
Geschatte waarde
€ 695.000
Oppervlakte
243 m2
Inhoud
827 m3
Aantal kamers
5 kamers
Slaapkamers
3
Soort bouw
Bestaande bouw

Voorzieningen in de buurt

Binnenkijken bij Floralaan West 149 te Eindhoven

Meer meldingen in deze omgeving

Nieuw bedrijf
December 2025
van Swietenlaan 16, 5644HG Eindhoven

Nieuw bedrijf
December 2025
Kochlaan 7, 5644HN Eindhoven

112 melding
Zaterdag 27-12-2025 om 15:24
Floralaan West, 5644BK Eindhoven

Nieuw bedrijf
December 2025
Floralaan West 159, 5644BJ Eindhoven

112 melding
Zaterdag 20-12-2025 om 17:33
Pasteurlaan, Eindhoven

Binnenkijken bij
Vrijdag 12-12-2025
Pasteurlaan 58, 5644JE Eindhoven

Nieuw bedrijf
December 2025
Ingenhouszlaan 9, 5644HM Eindhoven

Binnenkijken bij
Vrijdag 21-11-2025
Florastate 38, 5644BV Eindhoven

Direct een e-mail ontvangen bij nieuwe meldingen in deze regio?

Meld je dan GRATIS aan voor de Oozo Alert service voor Eikenburg

Instellen

Meer nieuws in Eikenburg

Weten hoe eenvoudig het is om af te vallen? Zonder pillen en smeersels en zonder je in het zweet te werken!
Kijk op eenvoudig-afvallen.nl

© 2012 - 2026 OOZO.nl - info@oozo.nl - Gegevens verwijderen? | Disclaimer | Privacy statement