Woning Roostenlaan 34 Eindhoven

Roostenlaan 34, 5644GE Eindhoven

Ontvang updates voor Gerardusplein

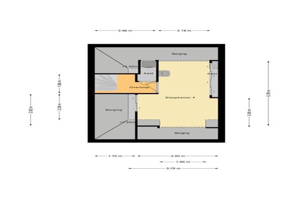
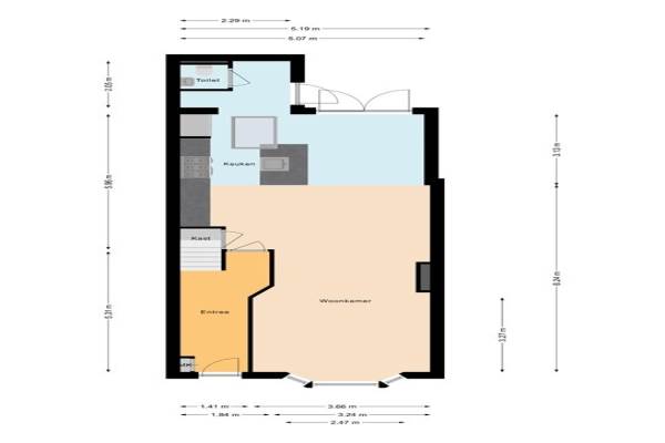
Het adres van deze woning uit 1928 is Roostenlaan 34 te Eindhoven. Het pand heeft een oppervlakte van 130m² en een perceeloppervlakte van 159m² en heeft 5 kamers kamers waarvan 4 slaapkamers. De geschatte waarde van deze woning is € 485.000.

Bekijk alle woningen in Gerardusplein

Gegevens van Eengezinswoning

Bouwjaar
1928
Geschatte waarde
€ 485.000
Oppervlakte
130 m2
Inhoud
455 m3
Aantal kamers
5 kamers
Slaapkamers
4
Badkamers
1 badkamer en 1 apart toilet
Soort bouw
Bestaande bouw
Eigendomssituatie
Volle eigendom
Ligging
Aan rustige weg en in woonwijk
Tuin
Tuin
Achtertuin
287 m² (27,74 meter diep en 10,33 meter breed)

Voorzieningen in de buurt

Binnenkijken bij Roostenlaan 34 te Eindhoven

Meer meldingen in deze omgeving

Binnenkijken bij
Zaterdag 17-1-2026
Hortensiastraat 29, 5644KN Eindhoven

Binnenkijken bij
Donderdag 15-1-2026
Seringenstraat 3, 5644PK Eindhoven

Binnenkijken bij
Zondag 11-1-2026
Balsemienplein 13, 5644LE Eindhoven

Binnenkijken bij
Zondag 11-1-2026
Orchideeënstraat 13, 5644NH Eindhoven

Onroerend goed
Zaterdag 10-1-2026
St Gerardusplein 2, 5644NE Eindhoven

Binnenkijken bij
Vrijdag 9-1-2026
Cyclamenstraat 29, 5644KH Eindhoven

Binnenkijken bij
Vrijdag 9-1-2026
Primulastraat 26, 5644LK Eindhoven

Binnenkijken bij
Vrijdag 9-1-2026
St Gerardusplein 20, 5644NG Eindhoven

Direct een e-mail ontvangen bij nieuwe meldingen in deze regio?

Meld je dan GRATIS aan voor de Oozo Alert service voor Gerardusplein

Instellen

Meer nieuws in Gerardusplein

Weten hoe eenvoudig het is om af te vallen? Zonder pillen en smeersels en zonder je in het zweet te werken!
Kijk op eenvoudig-afvallen.nl

© 2012 - 2026 OOZO.nl - info@oozo.nl - Gegevens verwijderen? | Disclaimer | Privacy statement