Woning Orchideeënstraat 33 Eindhoven

Orchideeënstraat 33, 5644NJ Eindhoven

Ontvang updates voor Gerardusplein

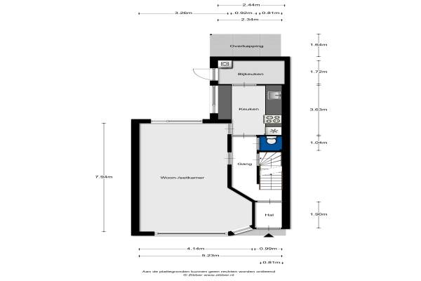
Het adres van deze woning uit 1935 is Orchideeënstraat 33 te Eindhoven. Het pand heeft een oppervlakte van 123m² en een perceeloppervlakte van 115m² en heeft 5 kamers kamers waarvan 4 slaapkamers. De geschatte waarde van deze woning is € 335.000.

Bekijk alle woningen in Gerardusplein

Gegevens van Eengezinswoning, tussenwoning

Bouwjaar
1935
Geschatte waarde
€ 335.000
Oppervlakte
123 m2
Inhoud
453 m3
Aantal kamers
5 kamers
Slaapkamers
4
Badkamers
1 badkamer en 1 apart toilet
Soort bouw
Bestaande bouw
Eigendomssituatie
Volle eigendom
Tuin
Achtertuin
Achtertuin
50 m² (10m diep en 5m breed)

Voorzieningen in de buurt

Binnenkijken bij Orchideeënstraat 33 te Eindhoven

Meer meldingen in deze omgeving

Binnenkijken bij
Dinsdag 11-11-2025
Irislaan 4, 5644PD Eindhoven

Binnenkijken bij
Dinsdag 11-11-2025
Geraniumstraat 35A, 5644NC Eindhoven

Binnenkijken bij
Dinsdag 11-11-2025
Orchideeënstraat 19, 5644NH Eindhoven

Binnenkijken bij
Dinsdag 11-11-2025
Orchideeënstraat 39, 5644NJ Eindhoven

Binnenkijken bij
Dinsdag 11-11-2025
Anjelierstraat 25, 5644PD Eindhoven

Nieuw bedrijf
November 2025
Varenstraat 9, 5644PR Eindhoven

Nieuw bedrijf
November 2025
Primulastraat 55, 5644LJ Eindhoven

Binnenkijken bij
Donderdag 30-10-2025
St Gerardusplein 20, 5644NG Eindhoven

Direct een e-mail ontvangen bij nieuwe meldingen in deze regio?

Meld je dan GRATIS aan voor de Oozo Alert service voor Gerardusplein

Instellen

Meer nieuws in Gerardusplein

Weten hoe eenvoudig het is om af te vallen? Zonder pillen en smeersels en zonder je in het zweet te werken!
Kijk op eenvoudig-afvallen.nl

© 2012 - 2025 OOZO.nl - info@oozo.nl - Gegevens verwijderen? | Disclaimer | Privacy statement