Woning Gabriël Metsulaan 24 Eindhoven

Gabriël Metsulaan 24, 5611SP Eindhoven

Ontvang updates voor Irisbuurt

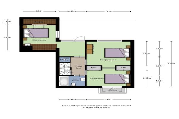
Het adres van deze woning uit 1956 is Gabriël Metsulaan 24 te Eindhoven. Het pand heeft een oppervlakte van 147m² en een perceeloppervlakte van 274m² en heeft 5 kamers kamers waarvan 4 slaapkamers. De geschatte waarde van deze woning is € 325.000.

Bekijk alle woningen in Irisbuurt

Gegevens van Eengezinswoning, hoekwoning

Bouwjaar
1956
Geschatte waarde
€ 325.000
Oppervlakte
147 m2
Inhoud
539 m3
Aantal kamers
5 kamers
Slaapkamers
4
Badkamers
1 badkamer en 1 apart toilet
Soort bouw
Bestaande bouw
Eigendomssituatie
Volle eigendom
Ligging
In woonwijk
Tuin
Achtertuin en voortuin
Achtertuin
100 m² (11,65m diep en 8,56m breed)

Voorzieningen in de buurt

Binnenkijken bij Gabriël Metsulaan 24 te Eindhoven

Meer meldingen in deze omgeving

Binnenkijken bij
Vrijdag 27-2-2026
Tongelresestraat 10, 5611VK Eindhoven

Nieuw bedrijf
Februari 2026
Stuiverstraat 3, 5611TA Eindhoven

Binnenkijken bij
Zondag 22-2-2026
Bleekstraat 11, 5611VB Eindhoven

Faillissement
Woensdag 11-2-2026
Geldropseweg 87, 5611SE Eindhoven

Faillissement
Dinsdag 10-2-2026
Geldropseweg 17, 5611SC Eindhoven

Binnenkijken bij
Maandag 9-2-2026
Kleine Bleekstraat 14, 5611VD Eindhoven

Binnenkijken bij
Zaterdag 7-2-2026
Tongelresestraat 6G, 5611VK Eindhoven

Onroerend goed
Donderdag 5-2-2026
Breitnerstraat 9, 5613LA Eindhoven

Direct een e-mail ontvangen bij nieuwe meldingen in deze regio?

Meld je dan GRATIS aan voor de Oozo Alert service voor Irisbuurt

Instellen

Meer nieuws in Irisbuurt

Weten hoe eenvoudig het is om af te vallen? Zonder pillen en smeersels en zonder je in het zweet te werken!
Kijk op eenvoudig-afvallen.nl

© 2012 - 2026 OOZO.nl - info@oozo.nl - Gegevens verwijderen? | Disclaimer | Privacy statement